4-к, Энгельс Показать на карте
Энгельс
Современный жилой комплекс ''Русский вальс'' расположен в центре Энгельса, недалеко от ТЦ ''Облака''. Экстерьер жилого комплекса: сдержанные линии, приятная палитра и древесные элементы подчеркивают природную концепцию городского жилья. Эффектный фасад в стиле современной классики создает уникальную атмосферу стиля и статуса, а уютный зеленый двор с детскими площадками и зоной ворк аута делает ''Русский Вальс'' идеальным местом для Вашей комфортной жизни.
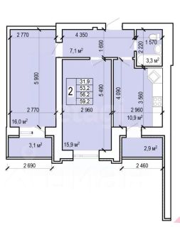
84 м2
2 / 10 этаж
- Показать контакты
- Добавить в избранное
84 м2
2 / 10 этаж
8 450 000
100 000 /м2
Новостройка,
III-2029
III-2029
