id:12280.
Предлагаем в аренду объект на Сокуре под склад/производство.
Описание:
- земельный участок 5149 кв.м. В твердом покрытии,
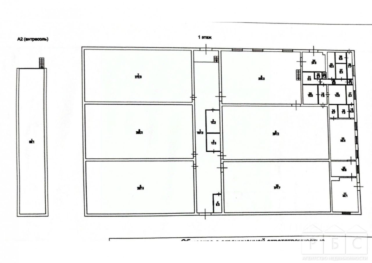
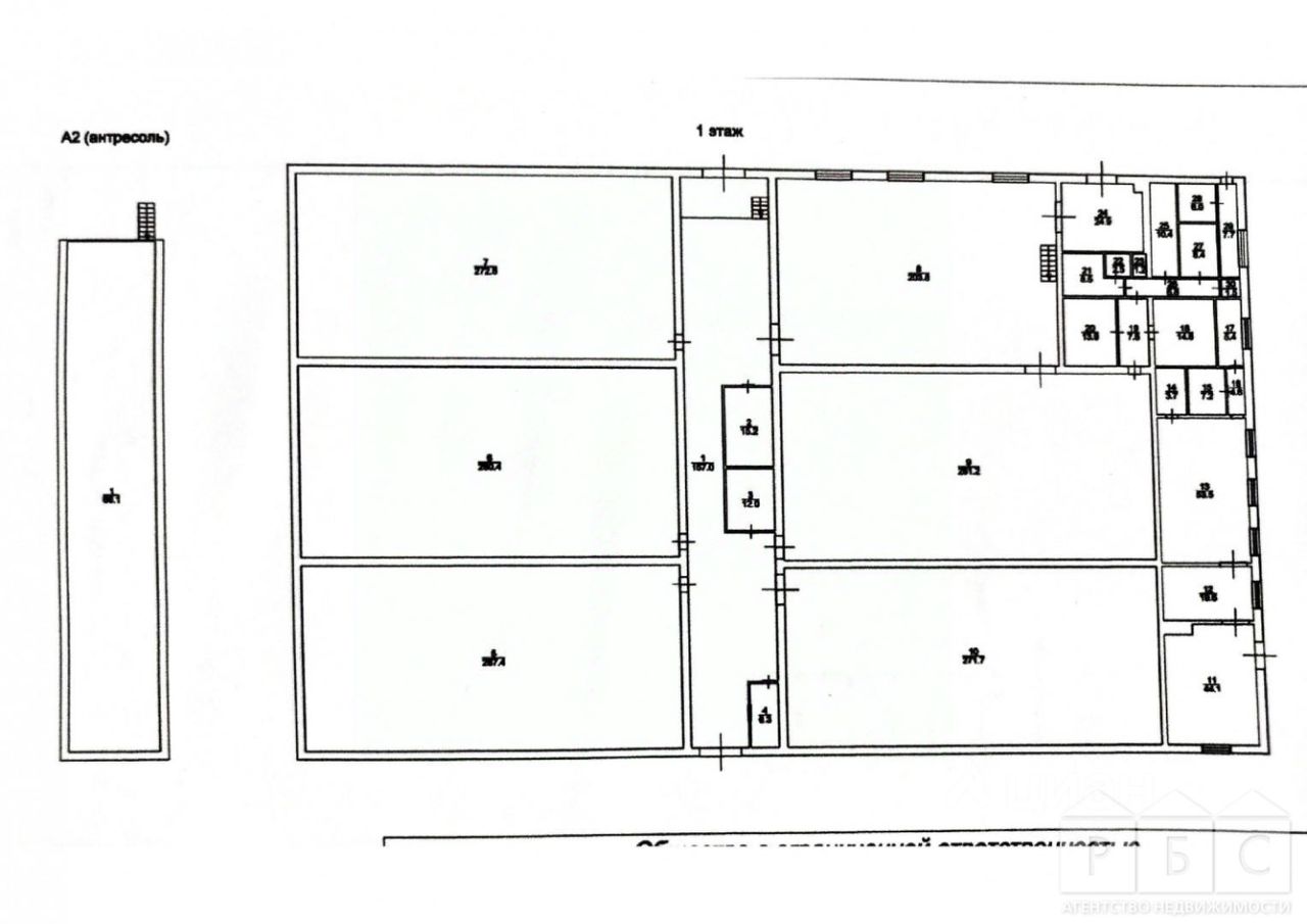
- здание - 2228,3 кв.м., которые можно разделить пополам,
- подсобные помещения: 1 этаж - раздевалки, душевые, подсобные помещения, котельная, 2 этаж - офис, кабинетная планировка.
- мощность - 95 кВт. Своя подстанция,
- отопление - газ.
Территория огорожена по периметру. Возможность проезда большегрузов вокруг объекта.
Назначение: склад, производство.
Аренда: 275 т.р. + комм за половину помещения
Без комиссии для арендатора!











