сдам торговые площади, им Сакко и Ванцетти, 23680 000 ₽ в месяц
16 сен
Дата публикации объявления
Обн. 21 ноя
Дата обновления объявления
1
Количество просмотров (+ просмотры за сегодня)
1532 ₽/м² в месяц
Параметры
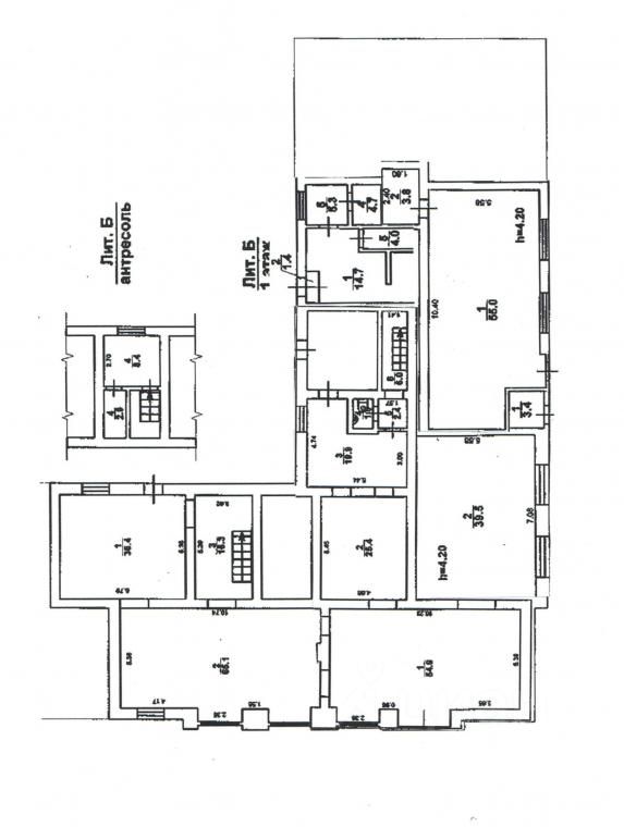
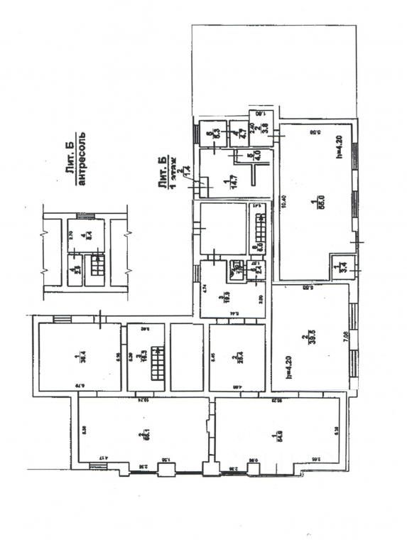
Общая площадь443,6 м2
Этаж1
Назначение помещения
пищевое производство
Предлагается в аренду ОТЛИЧНОЕ торговое помещение общей площадью 443,6 м², расположенное в центральном районе города, вдоль магистрали с ВЫСОЧАЙШИМ КРУГЛОСУТОЧНЫМ ТРАФИКОМ, по адресу: г. Саратов, ул. Сакко и Ванцетти д. 23., пересечение с ул. Горького (рядом с пр. Столыпина). Ранее размещался магазин '' Семейный'' , '' Продукты''.
Характеристики: Ул. Горького - ЦЕНТРАЛЬНАЯ магистраль. ПРЕКРАСНО РАЗВИТА ИНФРАСТРУКТУРА! Рядом находятся остановки, магазины, кафе и т.д., крупнейшая пешеходная зона города.
* Просторный основной вход в магазин прекрасно просматривается со всех сторон оживленного перекрестка!
* Интерьер магазина предварительно подготовлен для использования под торговую площадь. Условия исполнения ремонта обсуждаются индивидуально.
Предлагается в аренду ОТЛИЧНОЕ торговое помещение общей площадью 443,6 м², расположенное в центральном районе города, вдоль магистрали с ВЫСОЧАЙШИМ КРУГЛОСУТОЧНЫМ ТРАФИКОМ, по адресу: г. Саратов, ул. Сакко и Ванцетти д. 23., пересечение с ул. Горького (рядом с пр. Столыпина). Ранее размещался магазин '' Семейный'' , '' Продукты''.
Характеристики: Ул. Горького - ЦЕНТРАЛЬНАЯ магистраль. ПРЕКРАСНО РАЗВИТА ИНФРАСТРУКТУРА! Рядом находятся остановки, магазины, кафе и т.д., крупнейшая пешеходная зона города.
* Просторный основной вход в магазин прекрасно просматривается со всех сторон оживленного перекрестка!
* Интерьер магазина предварительно подготовлен для использования под торговую площадь. Условия исполнения ремонта обсуждаются индивидуально.
* Помещение имеет общую площадь 400 м. кв., а также все необходимые подсобные и складские помещения, что позволит функционально использовать объект в полном объеме.
* ВХОДНАЯ ГРУППА может быть размещена произвольно на ул. Сакко и Ванцетти или ул. М. Горького .
* Здание оснащено запасным выходом во двор дома, что позволяет использовать его при ведении погрузочно-разгрузочных работ. Всего имеется 5 входов.
* Парковка для авто,
* Центральное отопление, водоснабжение и водоотведение,
* Системы видеонаблюдения и сигнализации готовы к использованию,
* Кондиционеры и приточно-вытяжная система создадут комфортные условия для Ваших клиентов и сотрудников,
* Запаса электрической мощности ( 35 кВт.) с избытком хватит для любого оборудования. 2 ввода.