Если цена в объявлении изменится, мы сразу сообщим вам об этом на электронную почту.
Нажимая «Подписаться», вы соглашаетесь с правилами.
продам 2-к, Балаково6 920 000 ₽
23 окт
Дата публикации объявления
Обн. 11 мая
Дата обновления объявления
Спецпредложение
Турбо x8
110 543 ₽/м²
Чистая продажа
Термин "Чистая продажа" означает, что в квартире никто не прописан или
есть куда выписаться и вывезти вещи. Это лучший вариант для покупателя.
Вероятность срыва сделки минимальна.
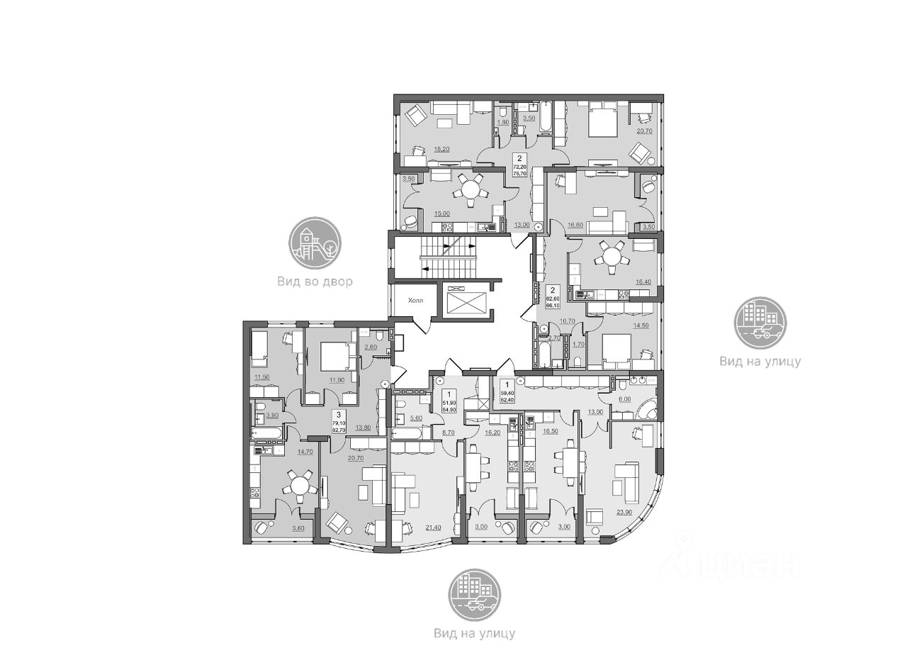
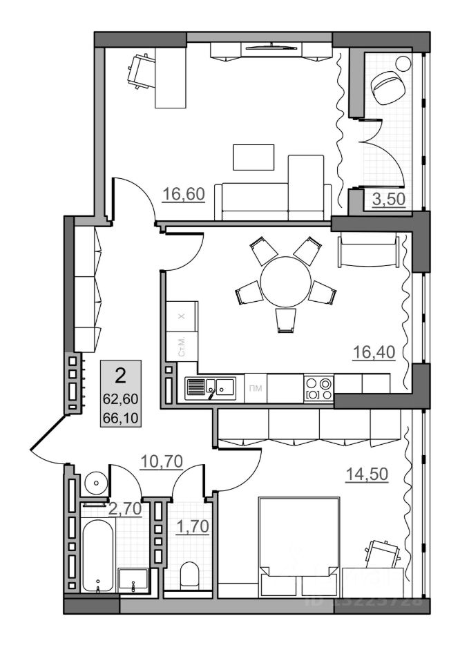
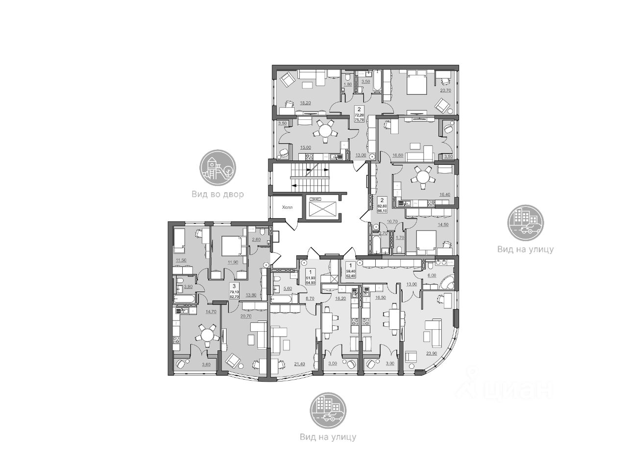
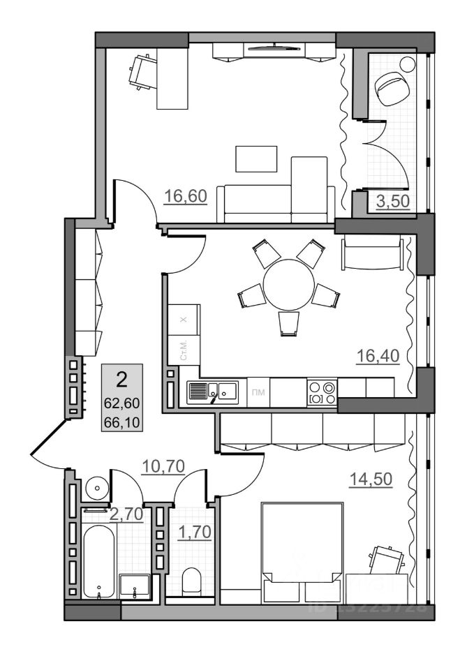
Квартира
Общая площадь62,6 м2
Тип собственностисвидетельство о праве собственности
Дом
Срок сдачи4 кв. 2027 г.
Этаж6 из 10
Материал домапанель
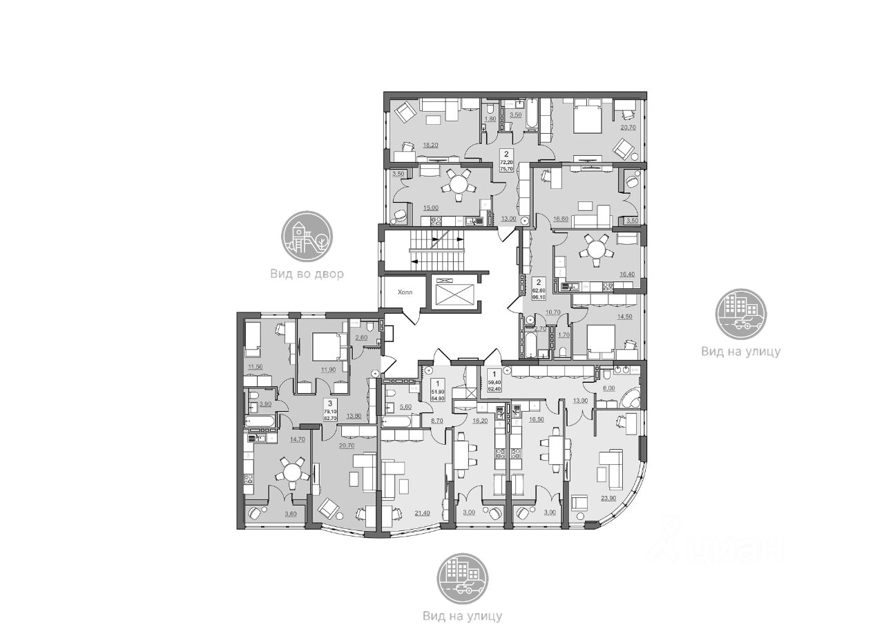
2-комнатная квартира в клубном доме Династия! Пространство, где начинается ваша история. Эта светлая и уютная квартира создана для двоих, кто ценит тишину, поддержку и радость совместных моментов. Здесь нет суеты - только вы, солнечный свет и комфорт в каждой детали. Уединенная спальня 14,5 м2. Здесь все про отдых и спокойствие. Просторная комната с увеличенным остеклением наполняется светом и воздухом. Вы можете расставить мебель так, как удобно именно вам: оставить больше места для сна или выделить уголок под чтение или занятия спортом. Просторная гостиная 16,6 м2. Центральное место в квартире - для встреч, разговоров и совместных вечеров. Здесь можно расслабиться или заняться делами. Идеально подойдет для пары, где один или оба работают из дома.
2-комнатная квартира в клубном доме Династия! Пространство, где начинается ваша история. Эта светлая и уютная квартира создана для двоих, кто ценит тишину, поддержку и радость совместных моментов. Здесь нет суеты - только вы, солнечный свет и комфорт в каждой детали. Уединенная спальня 14,5 м2. Здесь все про отдых и спокойствие. Просторная комната с увеличенным остеклением наполняется светом и воздухом. Вы можете расставить мебель так, как удобно именно вам: оставить больше места для сна или выделить уголок под чтение или занятия спортом. Просторная гостиная 16,6 м2. Центральное место в квартире - для встреч, разговоров и совместных вечеров. Здесь можно расслабиться или заняться делами. Идеально подойдет для пары, где один или оба работают из дома. Просторная кухня с обеденной зоной 16,4 м2 делают эту зону по-настоящему универсальной. Эта квартира - не просто стены, это теплый и красивый фон для вашей любви. Неважно вы только начали свой путь или уже давно вместе - здесь каждому будет хорошо. Свободная планировка. По желанию можно сделать перепланировку, подстроив квартиру под себя (требуется согласование с БТИ). Квартира продается базово без отделки. Вы можете заказать отделку от застройщика: white box (выполнены все черновые работы) или чистовая отделка. Стоимость отделки можно включить в ипотеку! Подъезды выполнены по дизайн-проекту. Современная отделка, бесшумные скоростные лифты. Предусмотрена установка всей необходимой навигации в подъезде. На первом этаже расположены велосипедная и колясочная, доступ к которой имеют только жители дома, а также гостевой холл с мягкой зоной ожидания. Придомовая территория разработана в концепции двор без машин, это позволит спокойно и безопасно отдохнуть или погулять с детьми на свежем воздухе. Во дворе детские и спортивные площадки с безопасным покрытием. Со стороны улицы Волжской будет организована просторная парковочная зона: 1 машиноместо на 1 квартиру. Своя управляющая компания! Охватываем все возможные направления работ по уходу за территорией и домом: уборка в местах общего пользования, ухаживание за растениями и зелеными зонами, обслуживание лифтового оборудования и т.д. Собственное приложение для отправки данных по счетчикам и формирование заявок о необходимых работах по дому. Следите за выполнением! Сроки сдачи дома - IV квартал 2028 года. Клубный дом ''Династия'' расположен на пересечении улиц Щорса и Комарова. Территория с уже сформированной и развитой инфраструктурой, где все рядом. Это не просто удачное местоположение - это логика удобства и уверенности в завтрашнем дне. В шаговой доступности находится детский сад, школа, СПА-центр и ТЦ Оранж. Возможна покупка в ипотеку! Объект аккредитован во всех ведущих банках страны. Наш ипотечный брокер совершенно бесплатно подберет наиболее выгодную для вас ипотечную программу с комфортными ежемесячными платежами. Вы можете оформить сделку под ключ - мы поможем с оформлением всех документов, в течении всей сделки и до получения ключей ваш будет курировать л