сдам торговые площади, Мясницкая, 141250 000 ₽ в месяц
11 ноя
Дата публикации объявления
Обн. сегодня
Дата обновления объявления
1
Количество просмотров (+ просмотры за сегодня)
793 ₽/м² в месяц
Параметры
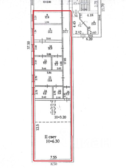
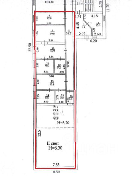
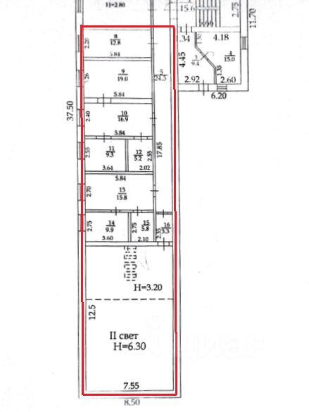
Общая площадь315 м2
Этаж1
ПРЕДЛАГАЕТСЯ В АРЕНДУ ТОРГОВОЕ ПОМЕЩЕНИЕ на 1-Й ЛИНИИ общей площадью 315 м. кв. .
Возможно использовать для размещения авто, мото, вело-магазина (ранее автосалон). Вход с ул. Мясницкой.
ХАРАКТЕРИСТИКИ:
Насыщенный автомобильный трафик. Доступность ВСЕХ районов. Рядом Парк Победы, школы, гипермаркеты, поликлиника. Остановки общественного транспорта.
Помещение расположено в 2х уровнях, включает в себя основной большой зал с лестницей в зал на 2-м уровне + офисные и подсобные помещения на 1-м этаже, * Имеется зона погрузки-разгрузки во дворе здания, въезд с ул. Мясницкой, + ПАРКОВКА перед зданием на 5 мест + ПАРКОВКА НА ТЕРРИТОРИИ 15-20 мест.
ПРЕДЛАГАЕТСЯ В АРЕНДУ ТОРГОВОЕ ПОМЕЩЕНИЕ на 1-Й ЛИНИИ общей площадью 315 м. кв. .
Возможно использовать для размещения авто, мото, вело-магазина (ранее автосалон). Вход с ул. Мясницкой.
ХАРАКТЕРИСТИКИ:
Насыщенный автомобильный трафик. Доступность ВСЕХ районов. Рядом Парк Победы, школы, гипермаркеты, поликлиника. Остановки общественного транспорта.
Помещение расположено в 2х уровнях, включает в себя основной большой зал с лестницей в зал на 2-м уровне + офисные и подсобные помещения на 1-м этаже, * Имеется зона погрузки-разгрузки во дворе здания, въезд с ул. Мясницкой, + ПАРКОВКА перед зданием на 5 мест + ПАРКОВКА НА ТЕРРИТОРИИ 15-20 мест.
* Доступ 24/7, * Охрана ОВО, * Видеонаблюдение, пожарная, охранная сигнализация, * С/У, * Электрическая мощность 30 кВт, * Собственная газовая котельная, * Смонтирована сплит-система, * Высота потолков основного зала - 6 м., * Пол - плитка, * Потолок подвесной (Армстронг), * Стены - окрашенные. * Запасной выход.
Условия аренды обсуждаются индивидуально. БЕЗ КОМИСИИ ! Звоните!