Если цена в объявлении изменится, мы сразу сообщим вам об этом на электронную почту.
Нажимая «Подписаться», вы соглашаетесь с правилами.
продам 1-к, Вокзальная, 61 250 000 ₽
11 ноя
Дата публикации объявления
Обн. вчера
Дата обновления объявления
1
Количество просмотров (+ просмотры за сегодня)
52 083 ₽/м²
Чистая продажа
Термин "Чистая продажа" означает, что в квартире никто не прописан или
есть куда выписаться и вывезти вещи. Это лучший вариант для покупателя.
Вероятность срыва сделки минимальна.
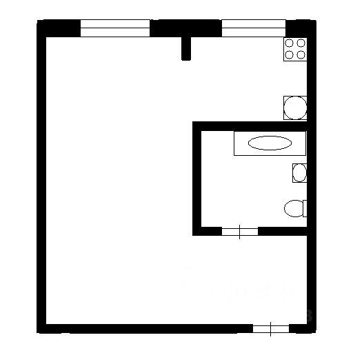
ВНИМАНИЕ! Продается 1-комн. квартира в теплом кирпичном доме в 4-ом микрорайоне, по ул. Вокзальная, д. 6!
О квартире:
* Общая площадь 24 кв.метра, * Удобный 2 этаж, * Установлены пластиковые окна! * Счетчик на электроэнергию.
О доме: * Кирпичный теплый дом, * Просторная парковка возле дома - всегда есть место для Вашего авто!
Преимущества расположения: * Школы, детские сады, поликлиника, спортивная площадка в паре шагов! * Гипермаркет ''Лента'', Рынок ''Рокот'', привокзальный рынок и продуктовые магазины все рядом!
Возможен торг.
Звоните прямо сейчас! Узнайте все подробности и запишитесь на просмотр!
Арт. 125198904 Внесен задаток.
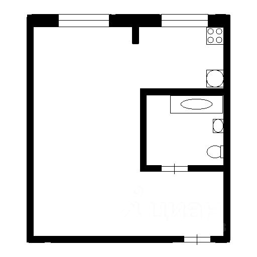
ВНИМАНИЕ! Продается 1-комн. квартира в теплом кирпичном доме в 4-ом микрорайоне, по ул. Вокзальная, д. 6!
О квартире:
* Общая площадь 24 кв.метра, * Удобный 2 этаж, * Установлены пластиковые окна! * Счетчик на электроэнергию.
О доме: * Кирпичный теплый дом, * Просторная парковка возле дома - всегда есть место для Вашего авто!
Преимущества расположения: * Школы, детские сады, поликлиника, спортивная площадка в паре шагов! * Гипермаркет ''Лента'', Рынок ''Рокот'', привокзальный рынок и продуктовые магазины все рядом!
Возможен торг.
Звоните прямо сейчас! Узнайте все подробности и запишитесь на просмотр! Только в агентстве недвижимости ''Мегаполис'' Вас ждет бесплатное оформление ипотечной заявки!