Если цена в объявлении изменится, мы сразу сообщим вам об этом на электронную почту.
Нажимая «Подписаться», вы соглашаетесь с правилами.
продам 1-к, Благодатная 1-я, 34 332 000 ₽
29 ноя
Дата публикации объявления
Обн. 17 апр
Дата обновления объявления
4
Количество просмотров (+ просмотры за сегодня)
Спецпредложение
Турбо x8
120 000 ₽/м²
Чистая продажа
Термин "Чистая продажа" означает, что в квартире никто не прописан или
есть куда выписаться и вывезти вещи. Это лучший вариант для покупателя.
Вероятность срыва сделки минимальна.
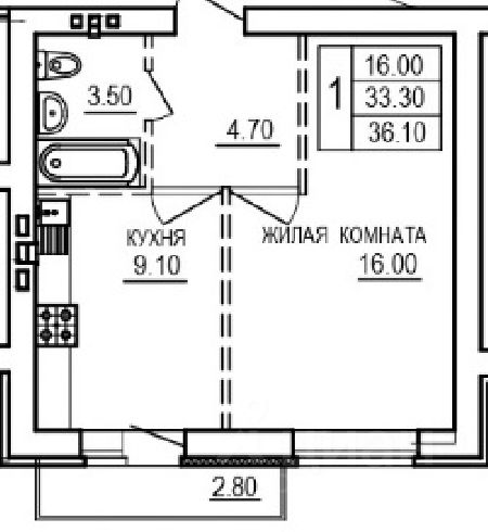
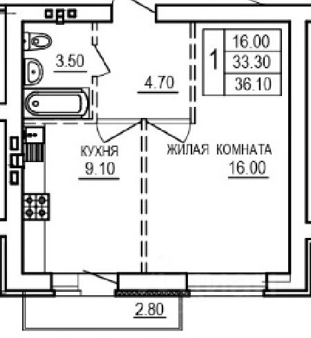
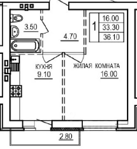
Квартира
Общая площадь36,1 м2
Тип собственностисвидетельство о праве собственности
Продаётся 1-комнатная квартира в сданном доме (Строение 1), срок сдачи: III-кв. 2025, общей площадью 36.1 кв.м., на 10 этаже. Жилой комплекс ''На Благодатной'' от застройщика ФораМонолит в городе Саратов на улице 1-я Благодатная.