Если цена в объявлении изменится, мы сразу сообщим вам об этом на электронную почту.
Нажимая «Подписаться», вы соглашаетесь с правилами.
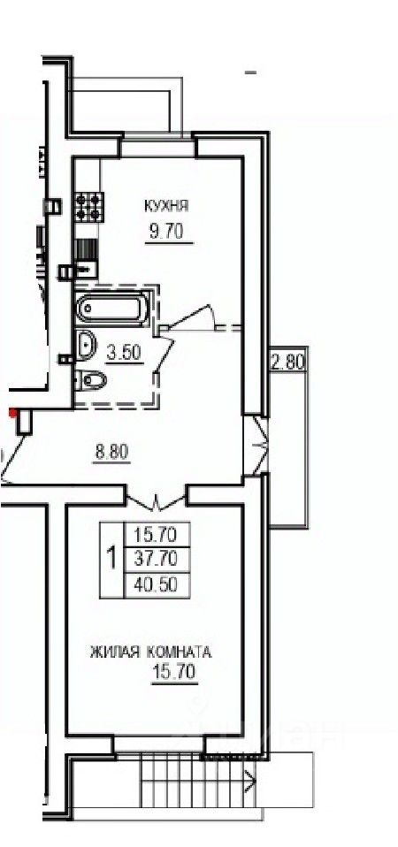
продам 1-к, Благодатная 1-я, 35 062 500 ₽
29 ноя
Дата публикации объявления
Обн. сегодня
Дата обновления объявления
2
Количество просмотров (+ просмотры за сегодня)
Спецпредложение
Турбо x8
125 000 ₽/м²
Чистая продажа
Термин "Чистая продажа" означает, что в квартире никто не прописан или
есть куда выписаться и вывезти вещи. Это лучший вариант для покупателя.
Вероятность срыва сделки минимальна.
Квартира
Общая площадь40,5 м2
Тип собственностисвидетельство о праве собственности
Продаётся 1-комнатная квартира в сданном доме (Строение 1), срок сдачи: III-кв. 2025, общей площадью 40.5 кв.м., на 10 этаже. Жилой комплекс ''На Благодатной'' от застройщика ФораМонолит в городе Саратов на улице 1-я Благодатная.