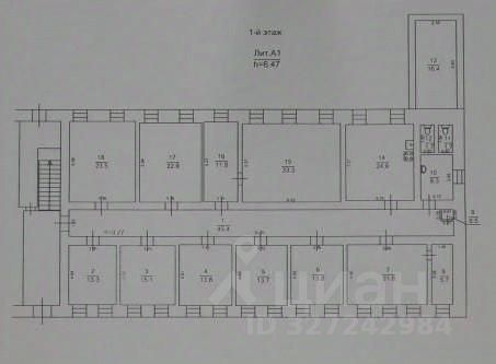
Аренда первого этажа отдельно стоящего здания. Помещение оборудовано 3-мя отдельными входами. Входная группа с возможностью размещения вывески. Зона разгрузки.
Мощность электроэнергии 40 кВт., с возможностью увеличить.
Возможна аренда частями отделка офисная, планировка кабинетного типа, с возможностью переделать. Есть все коммуникации, отопление, водопровод, канализация, электроснабжение.
Видео наблюдение, пожарная и охранная сигнализация.
Высота потолков 3.27 м.
Высокая проходимость, парковочных мест много перед зданием.








