Часть дома, Нефтяная, 55а Показать на карте
Балашов
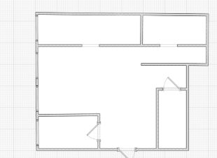
Агентство недвижимости ''ВАРИАНТ'' предлагает к покупкеПОЛОВИНУ КИРПИЧНОГО ДВУХКВАРТИРНОГО ДОМА (по документам 3-КОМНАТНАЯ КВАРТИРА), общей площадью 54,7 кв.м., со всеми удобствами и ГАРАЖОМ.О ДОМЕ:Кирпичный, толстые стены зимой тепло, летом прохладно.Сталинка это высокое качество домов на века.Кровля шифер.ПРО КОМФОРТ:ВСЕ УДОБСТВА.Индивидуальное отопление современный и экономичный газовый котёл (двухконтурный) с насосом для циркуляции + ПВХ трубы + биметаллические радиаторы.Центральное водоснабжение.Канализация практически бездонная сливная яма.Бойлер на 80 литров.Все окна ПВХ.Напольное покрытие линолеум, ДВП.Натяжные потолки и потолочная плитка.Четырёхконфорочная газовая плита.Мощная вытяжка.Металлическая входная дверь.Счётчики на газ и электричество (на столбе). Вода по нормативу (более выгодно).Подпол в тамбуре.ПЛАНИРОВКА:3 жилые комнаты:зал 17,5 кв.м.,две изолированные спальни 8,4 и 7 кв.м.Кухня 7,8 кв.м.Совмещённый санузел 3,4 кв.м.Прихожая 4,3 кв.м.Тамбур 6,3 кв.м.ОБ УЧАСТКЕ:В пользовании более 8 соток.Высажены плодоносящие яблони, черешня, груша, смородина, крыжовник, виноград, малина, клубника и др.Металлический ГАРАЖ.Заезд для машин.3 сарая.Теплица.Навес.Беседка.Качели.Летний душ.Вывод для полива.Дорожки из тротуарной плитки, забетонированные и плиты.ДАННЫЕ ПО СДЕЛКЕ:2 взрослых собственника.Больше 5 лет в собственности, что более безопасно для покупки и даёт возможность указать полную стоимость в договоре купли-продажи и полностью получить возврат подоходного налога.Альтернативная продажа. Возможен обмен на 2-3-комнатную квартиру с балконом.Бонусом частично остаётся мебель.ПРЕИМУЩЕСТВА:Круглогодичный подъезд, но в то же время и не совсем близко с автопотоком, на достаточном расстоянии от дороги.Удобная инфраструктура в шаговой 2-х минутной доступности:остановка маршруты 3, 11, 11а, 132, 132а,почта,магазины,церковь,кафе Корчма.Автономное отопление низкие платежи и комфортная температура именно для Вас.Изолированные спальни способствуют комфортному личному пространству.Просторная кухня уют семейного очага.Высокие 3-х метровые потолки создают атмосферу лёгкости и простора.Солидный земельный участок рядом с домом своя фазенда: и для работы, и для отдыха.Гараж рядом с жильём оптимальное решение для автовладельцев.Безопасная покупка. Собственники единственные владельцы квартиры с момента приватизации.Рассмотрите покупку СТАЛИНКИ СО ВСЕМИ УДОБСТВАМИ С АВТОНОМНЫМ ОТОПЛЕНИЕМ, БИМЕТАЛЛИЧЕСКИМИ РАДИАТОРАМИ, ПВХ ОКНАМИ и УЧАСТКОМ С ГАРАЖОМ рядом с асфальтом.Хороший вариант для тех, кто хочет совместить комфорт и удобство городской квартиры и преимущества частного дома.Важная информация!1. Нашу комиссию оплачивают ПРОДАВЦЫ.2. Можете предложить СВОЮ ЦЕНУ.3. С собственниками заключен ЭКСКЛЮЗИВНЫЙ ДОГОВОР о продаже (информация для непорядочных конкурентов).
54 м2
1 этаж
Кирпич
- Показать контакты
- Добавить в избранное
54 м2
1 этаж
Кирпич
2 880 000
52 651 /м2
