Коттедж, Запрудная Показать на карте
с. Генеральское
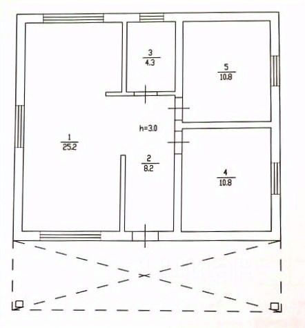
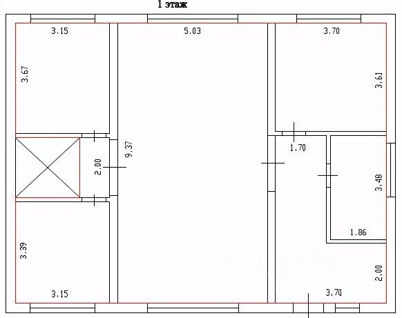
Добрый день! Продаем просторный ДВУХЭТАЖНЫЙ дом на БЕРЕГУ ПРУДА! 440 кв. метров продуманного пространства дома + большой участок 21 сотка редкое предложение для этого района. Дом построен надежной строительной компанией по проекту, который создавался для собственного проживания, с акцентом на НАДЕЖНОСТЬ, ФУНКЦИОНАЛЬНОСТЬ И КАЧЕСТВО! ! Продажа БЕЗ КОМИССИИ !Описание и фотографии соответствуют действительности.ПРО ДОКУМЕНТЫ:Один собственник.Чистая юридическая история. ПОЛНАЯ СТОИМОСТЬ в договоре!Готовы сразу выходить на сделку.Покажем все документы и проект дома.Собственник будет присутствовать на подписании.ПРО УЧАСТОК:Участок 21 СОТКА Ваша территория свободы! Большой ровный участок одно из преимуществ.Здесь легко реализовать любые идеи: сад, зона барбекю и отдыха, гостевой дом.На участке уже высажены СОСНЫ, ЕЛИ, ПЛОДОВЫЕ ДЕРЕВЬЯ: груша, персик, яблоня, абрикос, вишня, ягодные кустарники!ПРО ДОМ:Кирпичная кладка стен в 2,5 КИРПИЧА (640 мм) обеспечивает максимальную прочность, ДОЛГОВЕЧНОСТЬ и отличную несущую способность! В доме всегда ТЕПЛО ЗИМОЙ и ПРОХЛАДНО ЛЕТОМ! На первом этаже дома расположены: ПРОСТОРНАЯ КУХНЯ-ГОСТИНАЯ, СПАЛЬНЯ, ЗАЛ и САНУЗЕЛ.На втором этаже 2 СПАЛЬНИ, БИБЛИОТЕКА, БИЛЬЯРДНАЯ и САНУЗЕЛ. Все комнаты очень большие и просторные!В доме есть 4 ЛОДЖИИ. В подвальном помещении ГАРАЖ на 2 машино-места, САУНА с комнатой отдыха. Так же построен БАССЕЙН, но без отделки.Все КОММУНИКАЦИИ ПОДКЛЮЧЕНЫ, дом не требует срочных вложений! Можно заехать и жить!Расположение дома НА БЕРЕГУ ПРУДА и БОЛЬШАЯ ТЕРРИТОРИЯ УЧАСТКА создает ощущение уединения с природой! Кстати, ПРУД ЗАРЫБЛЕН и можно в свободное время порыбачить! Торг уместен, но после просмотра :)БЕСПЛАТНО ПРОКОНСУЛЬТИРУЕМ по сделке. Звоните!
440 м2
2 этажа
- Показать контакты
- Добавить в избранное
440 м2
2 этажа
11 999 999
27 273 /м2
