Дом, Солнечная, 24 Показать на карте
Взлетный
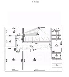
Продается великолепный дом на просторном участке площадью 25 соток! Это идеальное предложение для тех, кто мечтает о собственном уголке природы, не отказываясь от комфорта городской жизни. В доме частично сделан ремонт, пол в с/у и прихожей с подогревом. При продаже оставляют новую раковину (не установлена), отделочные материалы для окон (подоконники, откосы), плитка для ванной. Дом и участок находятся в собственности, межевание выполнено, что гарантирует вам полное спокойствие и уверенность в праве собственности. Все необходимые центральные коммуникации уже подключены: электричество, газ, вода. Септик — вам не придется тратить время и средства на дополнительные работы.Участок ровный и квадратной формы, что открывает множество возможностей для реализации ваших задумок — будь то постройка бани, беседки или даже бассейна. Один собственник, никаких долгов и обременений — вы можете быть уверены в чистоте сделки.Поселок, в котором расположен дом, предлагает все необходимые удобства для комфортной жизни: в шаговой доступности находятся школа, детский сад, почта и магазины. Отличная транспортная развязка позволит вам без труда добраться до центра города всего за 14 км. Регулярные маршрутные автобусы обеспечат вам легкий доступ к городской инфраструктуре.Не упустите шанс стать владельцем этого замечательного дома! Я помогу вам с оформлением ипотеки и обеспечу полное юридическое сопровождение сделки, гарантируя вашу безопасность и спокойствие. Звоните прямо сейчас, чтобы узнать больше и записаться на просмотр! Ваш новый дом ждет вас! Код пользователя: 118335Номер в базе: 4274530
37 м2
1 этаж
- Показать контакты
- Добавить в избранное
37 м2
1 этаж
2 600 000
69 705 /м2
