3-к, Имени Евгения Долгина, 6 Показать на карте
Ленинский район
Саратов
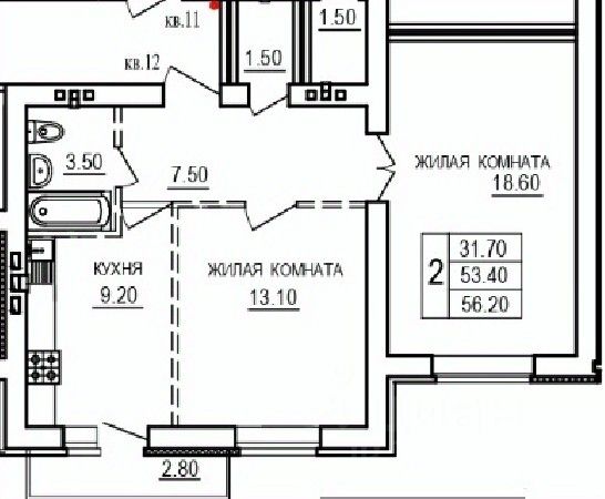
Живите по своим правилам в доме комфорт-класса!Эко-квартал Булгаковский парк входит в топ-5 федерального экспертного рейтинга по потребительским качествам. Дважды занимал призовые места в конкурсе Лучший ТОП ЖК от ЕРЗ.Эта просторная квартира с окнами на две стороны - удачное решение для семьи, где важен комфорт, личное пространство и продуманная функциональность. Благодаря такой планировке, в квартире всегда будет много естественного света, а грамотное распределение жилых и вспомогательных зон обеспечит удобство всем членам семьи.Кухня 11,3 м2 удобно отделена от жилых зон и легко зонируется: здесь поместиться вся необходимая техника и обеденная зона. Рядом - гостиная 16,3 м2 - светлая и уютная, идеально подходящая для семейных вечеров, приема гостей или спокойного отдыха. Из гостиной и кухни - выходы на большую остекеленную лоджию 6,2 м2, которую можно превратить в зимний сад, рабочее пространство или дополнительную зону отдыха. Детская спальня 15,3 м2 с возможностью размещения учебного и игровых зон. Благодаря правильной форме и размерам, здесь легко создать комфортную обстановку для ребенка любого возраста. Особое внимание уделено мастер-спальне. Это полноценное приватное пространство площадью 17,6 м2, дополненное отдельной гардеробной 3,1 м2 и личным санузлом 2,9 м2. Такая планировка создает ощущение уединенности и позволяет владельцам спальни чувствовать себя максимально комфортно. В дополнении к этому, в квартире предусмотрена еще одна отдельная гардеробная 1,5 м2 - идеальное место для хранения сезонных вещей или бытовых принадлежностей.Свободная планировка - вы можете перепланировать (требуется согласование с БТИ) и адаптировать квартиру под нужды семьи (при необходимости - объединение комнат, изменение формата кухни и так далее).Квартира продается базово без отделки. Вы можете заказать отделку от застройщика: white box (выполнены все черновые работы) или чистовая отделка. Стоимость отделки можно включить в ипотеку!Крышная котельная обеспечит горячей водой и комфортной температурой в квартире круглый год.Подъезды выполнены по дизайн-проекту. Современная отделка, бесшумные скоростные лифты. Предусмотрена установка всей необходимой навигации в подъезде. На первом этаже расположены велосипедная и колясочная, доступ к которой имеют только жители дома.Предусмотрено огороженная территория, установка умной домофонии (видеовызовы, история вызовов, вход без ключа, удаленный доступ из приложения). Современные спортивные ворк-аут зоны и детские площадки с безопасным покрытием во дворе.Своя управляющая компания! Охватываем все возможные направления работ по уходу за территорией и домом: уборка в местах общего пользования, ухаживание за растениями и зелеными зонами, обслуживание лифтового оборудования и т.д. Собственное приложение для отправки данных по счетчикам и формирование заявок о необходимых работах по дому. Следите за выполнением!Сроки сдачи дома - IV квартал 2027 года.Эко-квартал Булгаковский Парк расположен в районе Саратовского Ипп
81 м2
7 / 10 этаж
Монолит
- Показать контакты
- Добавить в избранное
81 м2
7 / 10 этаж
Монолит
9 559 000
116 858 /м2
Новостройка,
IV-2027
IV-2027
