Дом, Вишневая Показать на карте
с. Шумейка
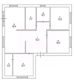
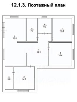
Добрый день! Продаем 1-этажный дом с просторной ТЕРРАСОЙ и отдельно стоящей БАНЕЙ на благоустроенном участке 10 соток в современном загородном поселке ''Покровский сад''!Свежий ДИЗАЙНЕРСКИЙ РЕМОНТ, качественная БЫТОВАЯ ТЕХНИКА, круглогодичные БЕСПЕРЕБОЙНЫЕ КОММУНИКАЦИИ в доме и функциональная планировка, где каждый метр продуман!Редкое предложение для тех, кто ценит городской комфорт, но хочет просыпаться под пение птиц, а не шум машин!Безопасно и с радостью юридически сопроводим Вашу сделку, деятельность нашего агентства застрахована на 20 000 000 рублей. Будем рады покупкам с нами и у нас!! Продажа БЕЗ КОМИССИИ !Описание и фотографии соответствуют действительности.ПРО ДОКУМЕНТЫ:Один собственник. Чистая юридическая история. Все объекты (земельный участок, дом и баня) зарегистрированы.Покажем все документы!ПОЛНАЯ СТОИМОСТЬ в договоре!Подходит под ипотеку!Готовы сразу выходить на сделку.Собственник будет присутствовать на подписании.ПРО УЧАСТОК:Участок 10 СОТОК Ваша территория свободы! Большой ровный участок одно из преимуществ.На участке выложена ТРОТУАРНАЯ ПЛИТКА, уже высажены и поддерживаются в ухоженном состоянии ГАЗОН, ХВОЙНЫЕ ДЕРЕВЬЯ, ЯГОДНЫЕ КУСТАРНИКИ! Здесь уже имеется все необходимое для Вашего отдыха:- БАНЯ с комнатой отдыха, санузлом и душевой с обливным ведром ''Водопад'',- многофункциональная ЗОНА БАРБЕКЮ с навесом и освещением!ПРО ДОМ:Современный одноэтажный дом 79,4 м2 с просторной ТЕРРАСОЙ! Дом построен из газоблоков с облицовкой из кирпича, что обеспечивает влагозащиту, высокую пожаробезопасность, отличную тепло- и звукоизоляцию и привлекательный внешний вид!Просторная КУХНЯ-ГОСТИНАЯ оборудована кухней с оптимизированным пространством для хранения, варочной панелью, духовым шкафом, микроволновой печью и посудомоечной машиной. В зоне ГОСТИНОЙ обеденный стол, стулья, удобный диван идеальное место для отдыха и приёма гостей!ДВЕ ИЗОЛИРОВАННЫЕ КОМНАТЫ обеспечат уют и личное пространство Вам и Вашим детям. СОВМЕЩЕННЫЙ САНУЗЕЛ с полноценной ванной и тропическим душем!В ЗОНЕ ПРИХОЖЕЙ большой функциональный шкаф-купе!В КОТЕЛЬНОЙ место под стиральную машину.ТЕПЛЫЕ ПОЛЫ во всех помещениях дома и бани!ГАЗ заведен в дом и баню, ВОДА КРУГЛОСУТОЧНО из собственной скважины, канализация септик.Все коммуникации подключены, дом совершенно НЕ ТРЕБУЕТ ВЛОЖЕНИЙ! Можно заехать и ЖИТЬ С КОМФОРТОМ!ПРО ИНФРАСТРУКТУРУ:СНТ ''Покровский сад'' расположен в прибрежном районе р. Волга и давно признан жителями Саратова и Энгельса одним из самых благоприятных и удобных мест как для летнего отдыха, так и для круглогодичного проживания. АСФАЛЬТИРОВАННЫЙ подъезд! В пешей доступности находятся продуктовые и строительные МАГАЗИНЫ, остановка общественного транспорта. На территории поселка свой благоустроенный ПЛЯЖ с детскими и спортивными площадками!Удаленность от Энгельса всего 7 км. Торг уместен, но после просмотра :)БЕСПЛАТНО ПРОКОНСУЛЬТИРУЕМ по сделке. Звоните!
79 м2
1 этаж
- Показать контакты
- Добавить в избранное
79 м2
1 этаж
18 499 999
232 997 /м2
