сдам универсальное помещение, им Кирова С.М. площадь, 1д250 000 ₽ в месяц
3 ноя
Дата публикации объявления
Обн. вчера
Дата обновления объявления
1
Количество просмотров (+ просмотры за сегодня)
1000 ₽/м² в месяц
Параметры
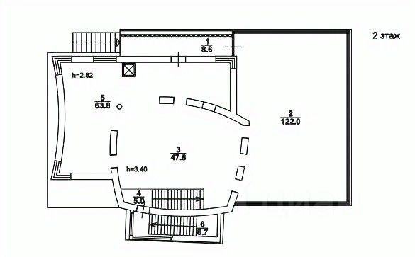
Общая площадь250 м2
Этаж2
Предлагаем в аренду 250 м. кв. на 2-м этаже в оживленном месте ! пр. Столыпина ( Кирова ) д. 1, на пересечении с Мирным переулком (рядом с ''ПОБЕДА ПЛАЗА'' ).
Здание расположено в самой престижной части города - на пешеходном проспекте, что гарантирует высочайший трафик и просматривается со всех сторон оживленного перекрестка! Вашу вывеску будут видеть тысячи потенциальных клиентов ежедневно ! ПРЕКРАСНО РАЗВИТА ИНФРАСТРУКТУРА! Рядом находятся остановки, торговые центры, магазины, кафе, банки, госучреждения. Так же имеются общие парковки для авто в шаговой доступности.
* Предлагаемый 2-й этаж имеет 2 основных собственных входа + дополнительный вход с обратной части здания. * ПАНОРАМНОЕ ОСТЕКЛЕНИЕ ОСНОВНОГО ЗАЛА .
Предлагаем в аренду 250 м. кв. на 2-м этаже в оживленном месте ! пр. Столыпина ( Кирова ) д. 1, на пересечении с Мирным переулком (рядом с ''ПОБЕДА ПЛАЗА'' ).
Здание расположено в самой престижной части города - на пешеходном проспекте, что гарантирует высочайший трафик и просматривается со всех сторон оживленного перекрестка! Вашу вывеску будут видеть тысячи потенциальных клиентов ежедневно ! ПРЕКРАСНО РАЗВИТА ИНФРАСТРУКТУРА! Рядом находятся остановки, торговые центры, магазины, кафе, банки, госучреждения. Так же имеются общие парковки для авто в шаговой доступности.
* Предлагаемый 2-й этаж имеет 2 основных собственных входа + дополнительный вход с обратной части здания. * ПАНОРАМНОЕ ОСТЕКЛЕНИЕ ОСНОВНОГО ЗАЛА . * Выделена производственная зона для кухни с коммуникациями+ дополнительное помещение+ санузлы. * ВОЗМОЖНО ВНЕСЕНИЕ ИЗМЕНЕНИЙ В ПЛАНИРОВКУ. Обсуждается индивидуально, * Индивидуальное газовое отопление, городское водоснабжение и водоотведение, * Потолок '' Армстронг '' ,высота 2.6 м. * Пол- керамогранитная плитка. * Вытяжная система смонтирована, * Системы видеонаблюдения и сигнализации функционируют, * Кондиционер, * Запаса электрической мощности ( 250 кВт.) с избытком хватит для любого оборудования, Без комиссии для арендатора ! ЗВОНИТЕ !