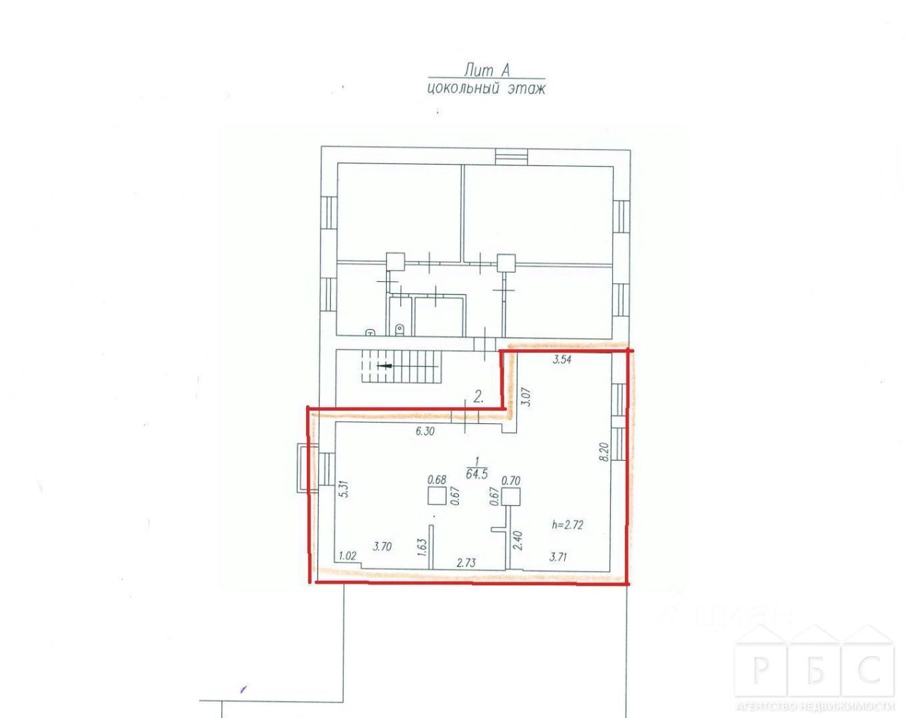
id:8784.
Предлагается в продажу помещение свободного назначения.
Локация: район 3 Дачной, ул. Мира 13В,
В непосредственной близости 3 Дачная, с развязкой во все районы города.
Помещение с окнами, высота потолков 2,8 м.
Перед помещением есть парковочные места.
Помещение оборудовано под склад (при желании можно организовать офис).
Напротив помещения развлекательный комплекс ''Екатерина''.
Помещения можно рассматривать как для сдачи в аренду, либо использовать для работы и развития собственного бизнеса.
Функционал: офис, оказание услуг, консультации, производство, швейная мастерская, фотоателье и т.д.










