id:9201.
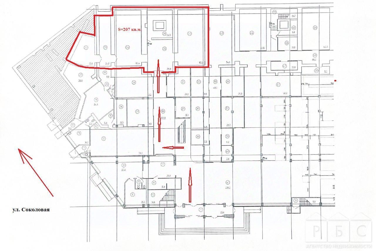
Площадь в аренду в Пентагоне в торговом комплексе
Расположение: ул. Соколовая, 18/40
Описание:
-площадь 207 кв.м.
-планировка 3 торговых зала + подсобное помещение
-эл. мощность 15 кВт
-в границах торгового центра с высоким трафиком
-парковка свободная
Назначение: торговля, офис, химчитска и прочее
Звоните и арендуйте!













