Если цена в объявлении изменится, мы сразу сообщим вам об этом на электронную почту.
Нажимая «Подписаться», вы соглашаетесь с правилами.
продам отдельностоящее здание, им 32 Стрелковой Дивизии, 1467 800 000 ₽
12 окт 2023
Дата публикации объявления
Обн. вчера
Дата обновления объявления
19
Количество просмотров (+ просмотры за сегодня)
10 169 ₽/м²
Параметры
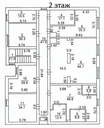
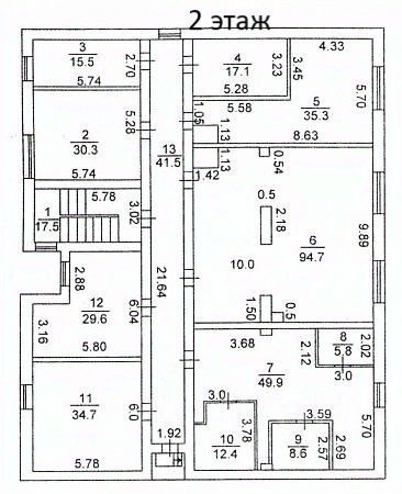
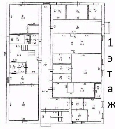
Общая площадь767 м2
Этаж1
Назначение помещения
магазин, выставочный зал, кафе, бар, ресторан
Продается 2-этажное здание площадью 767 кв. м в Парке Победы на территории Соколовой горы.
Здание продаётся с действующими арендаторами — крупными операторами сотовой связи.
Готовый арендный бизнес. МАП 72 855 с НДС. Срок окупаемости — 8,9 лет.
Лесной массив Парка Победы в непосредственной близости от национальной деревни. Прекрасный вид на город и Волгу.
Год постройки 1991. Планировка кабинетная. Обеспечено электроснабжением, выделенная мощность 40 кВт. Возможно отопление от электричества. Водоснабжение, водоотведение отсутствуют.
Территория огорожена. Подъезд по асфальтированной дороге.
Продается 2-этажное здание площадью 767 кв. м в Парке Победы на территории Соколовой горы.
Здание продаётся с действующими арендаторами — крупными операторами сотовой связи.
Готовый арендный бизнес. МАП 72 855 с НДС. Срок окупаемости — 8,9 лет.
Лесной массив Парка Победы в непосредственной близости от национальной деревни. Прекрасный вид на город и Волгу.
Год постройки 1991. Планировка кабинетная. Обеспечено электроснабжением, выделенная мощность 40 кВт. Возможно отопление от электричества. Водоснабжение, водоотведение отсутствуют.
Территория огорожена. Подъезд по асфальтированной дороге.
Отлично подойдет под туристический центр, частный музей, сувенирный магазин, культурно-выставочный центр, лекторий, кафе и многое другое.
В окружении Саратовский историко-патриотический комплекс ''Музей боевой и трудовой славы'', мемориальный комплекс Журавли.
Рядом есть места для парковки. Перед входом в парк остановка общественного транспорта.
Есть возможность перепланировки и размещения рекламной конструкции на фасаде здания. Земельный участок на праве долгосрочной аренды.
Продажа от собственника — юридического лица ПАО ''Ростелеком''. Цена указана с учетом НДС. Не является офертой.