Дом, 5 Дачная остановка левая сторона территория, 19 Показать на карте
Кировский район
Саратов
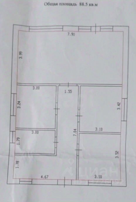
ПОД 6% ОБРАТИТЕ ВНИМАНИЕ! ЭТО ПРЕДЛОЖЕНИЕ ДЛЯ ВАС! ВЫ уже накопили, и готовы купить новую двухкомнатную квартиру- ОСТАНОВИТЕСЬ !!!! ЗА ЭТИ ЖЕ ДЕНЬГИ МОЖНО купить СОБСТВЕННЫЙ новый ДОМ, с пред чистовой отделкой, на собственной земле, без боев за парковочное место!, без шумных соседей над головой. За эту же сумму вы получите НЕ две, а ТРИ изолированные спальни , ПРОСТОРНУЮ кухню гостиную, холл, с нишей под гардеробную и, конечно же, с/узел. ФОРМА РАСЧЕТА 6% семейная ипотека 6% IT ипотека 100% кэш % ипотека по базовой ставке ПОЛНЫЙ ВИДЕООБЗОР ОТПРАВЛЯЮ ПО ЗАПРОСУ В ТЕЛЕГРАММ, ПОСЛЕ СОЗВОНА.ЛОКАЦИЯ Дом в черте города, в тихом спальном районе. Кировский район. Перинатальный центр. Подъезд круглый год. ИНФРАСТРУКТУРА в шаговой доступности остановка маршрутного такси 13 и 4.5 мин/ пешком магазин 5-ка и Магнит.5 мин н/авто вся инфраструктура поселков Юбилейный и Солнечный.аптеки, поликлиника, д/сады, школы,15 мин н/авто центр города.УЧАСТОК 5 соток ровный, собственность. категория - земли насаленных пунктов. назначение - для индивидуальной жилой застройки. ДОМ 85 м2кв собственность. кухня гостиная 25 м2кв комнаты 14/12/10 м2кв изолированныес/узел совместный ниша под гардеробную при входе МАТЕРИАЛЫ Фундамент (ленточный) заливной с заглублением 1,3 м в землю. цоколь - кирпичная кладка 1,2 м + бетонная монолитная плита стены пирог: кирпич/утеплитель/штукатурка окна пластиковые стеклопакеты . крыша мягкая кровля.ОТ ЗАСТРОЙЩИКА white box предчистовая отделка (теплый пол, стяжка, штукатурка ) пластиковые стеклопакеты. входная дверь, забор по периметру. ЗВОНИ - ВСТРЕЧАЕМСЯ НА ПРОСМОТРЕ. Арт. 129861679
85 м2
1 этаж
Кирпич
- Показать контакты
- Добавить в избранное
85 м2
1 этаж
Кирпич
7 000 000
82 353 /м2
