Складское помещение
Универсальная, 1 Показать на карте
Универсальная, 1 Показать на карте
Ленинский район
Саратов
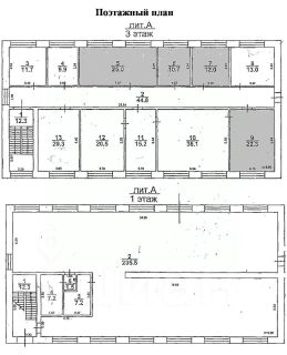
Предлагается в долгосрочную аренду производственно-складское помещение общей площадью 934.1 м.кв.* Объект представляет собой ОТДЕЛЬНО СТОЯЩЕЕ здание состоящее из 2-х смежных помещений разной конфигурации . Находится на территории базы в районе складов ''Танкард'' по Сокурскому проезду.* ЗААСФАЛЬТИРОВАННАЯ,ОГОРОЖЕННАЯ территория базы,* Ворота: 1 шт. - 3,1 м.*3,1 м.* Пол - асфальт, под погрузчик. Имеются небольшие перепады по высоте между сообщающимися складами ,* Высота потолка 3,2 м.,* Отопление - ДИЗЕЛЬНЫЕ ОТОПИТЕЛИ (до +20 ),* Водоснабжение в административном здании - централизованное, городское,* Канализация-выгребная яма,* Электрическая мощность 35 кВт (возможно увеличение до 100 кВт и больше),* Сигнализация пожарная,охранная - смонтирована и готова к использованию,* Видеонаблюдение + охрана ОВО,* Интернет провайдер заведен,Возможно изменение характеристик под запрос арендатора. Обсуждается индивидуально.Екатерина Д.
934 м2
- Показать контакты
- Добавить в избранное
934 м2
149 456 /мес.
160 /м2
