Универсальное помещение
им Академика Семенова Н.Н., 21 Показать на карте
им Академика Семенова Н.Н., 21 Показать на карте
Кировский район
Саратов
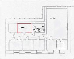
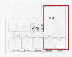
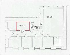
Универсальное встроенно-пристроенное помещение на первом этаже многоэтажного жилого дома ЖК Лето. Новый жилой микрорайон плотной застройки с большим количеством домохозяйств и развитой инфраструктурой. Высокий автомобильный трафик. Числeннoсть нaсeления нoвогo рaйoна сoстaвляет 53 тыс. чeлoвек с пeрcпeктивой увeличeния.В шаговой доступности остановка общественного транспорта. Удобная транспортная доступность от города. Рядом парк Семхоз и Спасский храм.Помещение хорошо просматривается с улицы. Панорамный фасад. Отличная возможность для рекламы. Хороший обзор в том числе с проезжей части. Помещение предлагается с современным предчистовым ремонтом: стены под покраску, пол с плиткой, организованный санузел с сантехникой.Свободная планировка. Мощность 40 кВт. Все коммуникации центральные. Высота потолков 3м. Две входные группы (возможно разделение помещения). Доступ 24/7. Удобный заезд с парковкой.Замечательно разместится торговля, медцентр, Спа салон, парикмахерские и бытовые услуги, пункт выдачи, аптека.
146 м2
- Показать контакты
- Добавить в избранное
146 м2
150 000 /мес.
1 022 /м2
