logo
N1.RU — новая улучшенная версия Е1.Недвижимость
Чтобы вернуться на старый сайт Е1.Недвижимость, перейдите по ссылке в нижней части сайта N1.RU
  • Продажа
  • Аренда
  • Новостройки
  • Журнал
  • Компании
  • Шаблоны документов
  • Налоговый вычет
  • Еще
  • Личный кабинет
    • Регистрация на Циан
    • Саратов
  • Добавить объявление
Тип недвижимости
Саратов
Начните вводить или выберите объект в выпадающем списке
  • Район и микрорайон
Тип помещения
Цена, ₽/месяц
  1. Недвижимость в Саратове
  2. Аренда
  3. Коммерческая
  4. 70 объявлений

Аренда коммерческой недвижимости в Саратове

  • Универсальное помещение70
  • Для работы с клиентами70
  • Магазин, выставочный зал24
  • Кафе, бар, ресторан12
  • Склады, хранение товаров10
  • Медицинский центр, стоматология5
  • Салон красоты, парикмахерская3
За все время
Сортировка по умолчанию
СпискомСписком
ТаблицейТаблицей
На картеНа карте
Открыть поиск по карте

По вашему запросу объявлений не найдено

1/12
Универсальное помещение
Ново-Астраханское шоссе, 64а
 Показать на карте
Заводской район
Саратов
Сдам очень красивое 3-х этажное отдельно стоящее здание общей площадью 1330 м² на земельном участке 3000 м², по адресу: г. Саратов, ул. Ново-Астраханское шоссе 64а.НЕ СДАЁТСЯ ПОЭТАЖНО!Каждый этаж по 445 м² и соединяются лестницей. Планировка этажей добавлена к объявлению.Располагается в близи центральной магистрали в Заводском районе г. Саратова, на Ново-Астраханском шоссе.Территория огорожена и рядом находиться охрана соседней организации.Соответствует требованию пожарной безопасности имея запасной эвакуационный выход.На всех этажах сделан черновой ремонт: - залита стяжка, - стены отштукатурены - установлены пластиковые окна- коммуникации подведеныВсё это даёт вам возможность сделать ремонт, подходящий для вашего бизнеса.Отлично подойдет под медицинский центр, колл-центр, банк, офисный центр и многое другое.
1330 м2
  • Показать контакты
  • Добавить в избранное
1330 м2
665 000 /мес.
500 /м2
    1/11
    Универсальное помещение
    Большая Горная, 215
     Показать на карте
    Кировский район
    Саратов
    Сдается нежилое помещение свободного значения в центре города!В очень удобной пешей и транспортной доступности, на пересечении улиц Вольская/Б.Горная. Отдельный вход, со двора.Свободные парковочные места во дворе и на улице. Можно использовать под офис, клинику, салон, магазин и т.д.Помещение состоит из 3-х изолированных комнат, имеется входная группа-ресепшен, два санузла, гардеробная-кладовая, большая лоджия. Выполнена черновая отделка-штукатурка, стяжка. Отопление центральное, холодная и горячая вода, канализация.
    75 м2
    • Показать контакты
    • Добавить в избранное
    75 м2
    45 000 /мес.
    600 /м2
      1/10
      Универсальное помещение
      Октябрьская, 98
       Показать на карте
      Дергачи
      Сдаётся помещение свободного назначения площадью 10,6 кв. м на 1 этаже.Отлично подойдет под офис, мастерскую и многое другое. Оживлённый перекресток в центре.Первая линия. Высокий пешеходный и автомобильный трафик. Рядом Администрация, магазины, кафе, парикмахерская, аптеки, отделения банков, остановки общественного транспорта, большой жилой массив.Центрaльнoе электрoснабжениe и отопление. Есть возможность размещения рекламной конструкции на фасаде здания, подключения высокоскоростного интернета и городского телефона.Охрану, уборку помещения, мест общего пользования, прилегающей территории, вывоз ТБО арендатор осуществляет самостоятельно. Аренда от собственника юридического лица ПАО ''Ростелеком''. Цена указана с НДС 20%, без учета стоимости электроэнергии. Не является офертой.Звоните! С удовольствием ответим на все вопросы.
      10 м2
      • Показать контакты
      • Добавить в избранное
      10 м2
      2 650 /мес.
      250 /м2
        1/20
        Универсальное помещение
        Песчаная, 60
         Показать на карте
        Сенной рп
        Cдаютcя в аpeнду помещения свoбоднoго нaзнaчения площадью 108,7 кв. м на 1 этаже. Центр поселка, красная линия. Рядом поликлиника РЖД-Медицина, Ильинская церковь, большой жилой массив.Возможно предоставление арендных каникул на время проведения ремонта.Есть возможность размещения рекламной конструкции на фасаде здания, подключения городского телефона и высокоскоростного интернета.Подойдет под магазин, офис, небольшое производство, склад и многое другое.Аренда от собственника — юридического лица ПАО ''Ростелеком''. Цена указана с учетом НДС 20%. Не является офертой.Звоните! С удовольствием ответим на все вопросы.
        108 м2
        • Показать контакты
        • Добавить в избранное
        108 м2
        21 740 /мес.
        200 /м2
          1/8
          Универсальное помещение
          Телефонная, 1/2
           Показать на карте
          с. Усть-Золиха
          Сдаются в аренду помещения свободного назначения общей площадью 10,3 кв. м на 1 этаже.Отлично под магазин, офис, мастерскую и многое другое. Предоставляются арендные каникулы на время ремонта.Центрaльнoе электрoснабжениe, сoбствeннaя кoтeльнaя. Есть возможность размещения рекламной конструкции на фасаде здания. Охрану, уборку помещения, мест общего пользования, прилегающей территории, вывоз ТБО арендатор осуществляет самостоятельно. Аренда от собственника юридического лица ПАО ''Ростелеком''. Цена указана с НДС 20% без учета электроэнергии. Не является офертой.Звоните! С удовольствием ответим на все вопросы.
          10 м2
          • Показать контакты
          • Добавить в избранное
          10 м2
          1 236 /мес.
          120 /м2
            1/7
            Универсальное помещение
            Мирный переулок, 11
             Показать на карте
            Фрунзенский район
            Саратов
            Арт. 110312334 Ваше помещение в Мирном переулке! -Сдается помещение общей площадью 71,7 м2 в Мирном переулке на 4 этаже. -4 кабинета, сан/узел с душевой кабиной. Все стены не несущие, можно переоборудовать под единое пространство. -В здании есть лифт. -Высота потолков 2,8 м2. -Электрическая мощность 35 квт. -Центральное отопление. -Подойдет под офисы, швейную мастерскую, ателье, архив, склад. В данном месте большой спрос на аренду. Отличный пешеходный трафик. -Стоимость аренды 700 рублей за м2 в месяц. Коммунальные и эксплуатационные платежи сверху. -Без комиссии для арендатора. Арт. 102512284
            71 м2
            • Показать контакты
            • Добавить в избранное
            71 м2
            50 200 /мес.
            700 /м2
              1/8
              Универсальное помещение
              им Пугачева Е.И., 140
               Показать на карте
              Кировский район
              Саратов
              Сдается презентабельное торгово-офисное помещение в одной из самой оживленной части центра города район ТЦ Триумф Молл.Помещение расположено на первом этаже двухэтажного отдельно стоящего нежилого здания. Удобный подъезд. Парковочные места. Отдельный вход с доступом 24/7.В помещении свободная планировка, возможно разделение на кабинетную. Большие тонированные панорамные окна. Домофон. Сплит-система. Индивидуальное отопление. Все коммуникации. Отдельный санузел.Помещение отлично подойдет под офис компании, медицинские и бьюти-услуги, торговлю премиального уровня.Арендные каникулы и ремонт ''под себя'' - возможны.Предложение без комиссии. Заинтересовал объект - звоните для просмотра!
              127 м2
              • Показать контакты
              • Добавить в избранное
              127 м2
              82 550 /мес.
              650 /м2
                1/11
                Универсальное помещение
                Обуховский переулок, 13/19
                 Показать на карте
                Волжский район
                Саратов
                Арт. 110311025 Сдаётся коммерческое помещение свободного назначения в центральном районе города Саратова, общей площадь 100 кв.м. Отличная локация, место с хорошей проходимостью, развитая инфраструктура, рядом остановка общественного транспорта. Рассматривается вариант каникул на период ремонта. Планировка включает в себя 4 различных помещения, можно частично переделать планировку для себя!!!! Просмотры в любое удобное для вас время по предварительной договоренности. Помещение отлично подойдет под сетевые магазины, рестобар, фитнес клуб, офис, клиники и т.д.... Не упустите уникальную возможность Создайте свой успешный бизнес!!!!! Звоните или пишите прямо сейчас!!! Арт. 101541194
                100 м2
                • Показать контакты
                • Добавить в избранное
                100 м2
                45 000 /мес.
                450 /м2
                  1/32
                  Универсальное помещение
                  Аллейная, 24 ст1
                   Показать на карте
                  Кировский район
                  Саратов
                  Сдам в аренду новое помещение 220м2. Район молочки ул. Аллейная.на первом этаже моожно организовать ресепшн и гардеробную ,и второй этаж использовать полностью под назначение. Помещение новое, с ремонтом. Есть возможность поделить на отдельные боксы, возможность увеличить мокрые точки. Электричество 50 кВт с возможностью увеличения мощности.Установлен подъемник для грузов ( грузоподьемность 500 кг ) заезд для погрузки, разгрузки товаров с боку здания.Так же есть возможность дополнительно арендовать доп помещение в месте погрузки и разгрузки. Помещение хорошо отапливается. Активный трафик, удобное расположение помещения, в ближайшее будущее застроят новый район ''Аэропорт'' и трафик увеличится еще больше.Есть парковка для грузовых и легковых автомобилей! Помещение подходит под все виды деятельности: особенно под квесты ,а так же офис, магазин, Аптека, торговое помещение, производство, детский центр, колл центр и много других видов деятельности.
                  200 м2
                  • Показать контакты
                  • Добавить в избранное
                  200 м2
                  77 000 /мес.
                  385 /м2
                    1/23
                    Универсальное помещение
                    Одесская, 26
                     Показать на карте
                    Ленинский район
                    Саратов
                    ОТ СОБСТВЕННИКА! БЕЗ КОМИССИИ ДЛЯ АРЕНДАТОРА! Помещение 350 м² у Городской больницы 8, в районе 3-й Дачной: Одесская, д. 26. Требуется ремонт. Возможны арендные каникулы на время ремонта.Характеристики и преимущества:- Предложение включает правое крыло на 2 этаже встроенно-пристроенной группы. На 1 этаже, под этим помещением Магнит.- Большая бесплатная парковка рядом.- Помещение находится рядом с оживленной транспортной развязкой, отличным автомобильным и пешеходным трафиком, на конечной остановке маршрутов. Рядом расположены аптеки, магазины, КБ.- 2 ВХОДА и круглосуточный доступ 24/7 .- Возможность расположения заметной рекламной вывески на фасаде здания и над входом в помещение.- В помещении требуется косметический ремонт. Окна с решетками.- Высота потолков: 3 метра, разрешенная мощность 35 КВт +.- Пожарная и охранная системы смонтированы и готовы к использованию.- Пол паркет, потолок подвесной , стены под покраску.- Помещение имеет более 8 кабинетов, просторные холлы, подсобные помещения, имеются 2 санузла. Почти ВСЕ перегородки - НЕ НЕСУЩИЕ, можно сделать одно большое пространство в 280 кв.м..- Помещение рассматривается под разные виды деятельности: мед. учреждение, хостел, гостиница, клиентский офис, банк, детский центр и мн. др.Доп. информация: НЕОБХОДИМ РЕМОНТ. Возможны арендные каникулы на время ремонта.Дмитрий Т.
                    350 м2
                    • Показать контакты
                    • Добавить в избранное
                    350 м2
                    122 500 /мес.
                    350 /м2
                      1/5
                      Универсальное помещение
                      им Мичурина И.В., 172
                       Показать на карте
                      Волжский район
                      Саратов
                      Сдаю офисное помещение. (полуподвальное). Расположенное в центральной части города, находящиеся в шаговой доступности от главной пешеходной зоны и транспортной развязки. (набережная,улица Волжская, рестораны СОХО,атлас) 1 ая линия. Помещение разделено на кабинеты. В кабинетах кондиционеры. Отдельная сейфовая комната. Возможно использовать под ломбард. Помещение 180 кв. Аренда возможна как всего комплекса так и частями. сдача под офисы, производство, склад.Подробности по телефону.
                      180 м2
                      • Показать контакты
                      • Добавить в избранное
                      180 м2
                      63 000 000 /мес.
                      350 000 /м2
                        1/22
                        Универсальное помещение
                        им Кирова С.М. площадь, 1д
                         Показать на карте
                        Фрунзенский район
                        Саратов
                        От собственника! Без комиссии!Характеристики:- 1 линия- Отдельная входная группа- Общая парковка- Есть возможность разместить вывеску- Погрузка/разгрузка: Главный вход, Запасной вход- Доступ 24/7- ХВС/ГВС- Свой санузел- Центральное отопление- Приточная вентиляция- Есть кондиционер- Максимальная мощность 250 кВт- Хороший ремонт- Отдельно стоящее здание- Имеется запасной выход- Без лифта- Высота потолков 4 м- С окнами- Возможность перепланировки- Видеонаблюдение- Коммунальные услуги оплачиваются отдельноДополнительная информация:Здание в самом центре Саратова! Два этажа + высокий цоколь, идеально подойдёт под стоматологическую или медицинскую клинику, ресторан, банк, страховая компания, офис, представительство крупной компании. В шаговой доступности цирк, крытый рынок, ТЦ Победа Плаза, парк, пешеходная зона пр. Столыпина и другие объекты. Огромный пешеходный и автомобильный трафик.Ценообразование стоимости аренды кв.м за всё здание:1 этаж-255 м2 по 1000 р (255 000 р)2 этаж-255 м2 по 700 р (178 000 р)Цоколь-170 м2 по 400 р (68 000 р)При аренде по этажно стоимость кв.м другая(уточнять по телефону).По всем вопросам можете обращаться к представителю собственника: Кирилл Б.Добавьте это объявление в ''избранное'' - чтобы не потерять.
                        681 м2
                        • Показать контакты
                        • Добавить в избранное
                        681 м2
                        500 000 /мес.
                        733 /м2
                          1/7
                          Универсальное помещение
                          им Академика Семенова Н.Н., 19
                           Показать на карте
                          Кировский район
                          Саратов
                          Встроенно-пристроенное помещение расположено на первом этаже многоэтажного жилого дома. Новый жилой микрорайон с большим количеством домохозяйств и развитой инфраструктурой.Помещение хорошо просматривается с улицы. Планировка свободная. Панорамные окна.Все коммуникации, отопление центральное. Возможность размещения рекламы на фасаде. В шаговой доступности остановка общественного транспорта. Удобная транспортная доступность от города. Рядом парк Семхоз и Спасский храм.Отлично подойдет под торговлю и сферу услуг. Соседние помещения занимают: пекарня, ''Пивной стандарт'', мясная лавка, пункт выдачи Озон, салон красоты, вейп-шоп.
                          80 м2
                          • Показать контакты
                          • Добавить в избранное
                          80 м2
                          96 000 /мес.
                          1 200 /м2
                            1/9
                            Универсальное помещение
                            Топорковская, 6
                             Показать на карте
                            Пугачев
                            Сдaется в apенду помещение свободнoго нaзначeния площадью 41,8 кв. м нa 1 этaже пo aдpeсу: Сарaтовcкaя oблаcть, г. Пугaчeв, ул. Tопopкoвскaя, д. 6.Отлично подойдёт под офис, пункт выдачи, оказание услуг, обслуживание населения, мастерскую и многое другое.Возможно предоставление арендных каникул на время проведения ремонта.Центр гоpода, oтличная транcпoртнaя доступность. Отдельный вxoд.Помeщение обeспечeно элeктpоcнабжениeм и oтoплeнием.Коммунальные, эксплуатационные услуги и электроэнергия не входят в стоимость арендной платы. Охрану, уборку помещения, мест общего пользования, прилегающей территории, вывоз ТБО арендатор осуществляет самостоятельно.Аренда от собственника — юридического лица ПАО ''Ростелеком''. Цена указана с учетом НДС 20%.Звоните! С удовольствием ответим на все вопросы.
                            41 м2
                            • Показать контакты
                            • Добавить в избранное
                            41 м2
                            8 200 /мес.
                            200 /м2
                              1/22
                              Универсальное помещение
                              Мирный переулок, 6
                               Показать на карте
                              Октябрьский район
                              Саратов
                              От собственника! Без комиссии!Характеристики:- 1 линия- Отдельная входная группа- Общая парковка- Есть возможность разместить вывеску- Доступ 24/7- ХВС/Бойлер- Свой санузел- Центральное отопление- Естественная вентиляция- Есть кондиционер- Максимальная мощность 15 кВт- Хороший ремонт- Стрит ритейл- Высота потолков 3 м- С окнами- Возможность перепланировки- ВидеонаблюдениеДополнительная информация:Помещение в центре города, рядом с ТЦ ''Победа Плаза''. Постоянный пешеходный и автомобильный трафик. Помещение состоит из основного зала, хранилища/кассы (спец. оборудованное помещение с сейфом, металлической дверью, кондиционером и окошком выдачи), кабинета с серверной, комнаты для персонала и сан.узла. Сплит-системы установлены в каждом помещении (3 шт.). Видеонаблюдение, пожарно - охранная сигнализация (всё работает).Возможна перепланировка (снос ВСЕХ стен, кроме сан.узла). Подходит под офис, ПВЗ, магазин, банк, ломбард.По всем вопросам можете обращаться к представителю собственника: Роман Х.Добавьте это объявление в ''избранное'' - чтобы не потерять.
                              79 м2
                              • Показать контакты
                              • Добавить в избранное
                              79 м2
                              125 000 /мес.
                              1 582 /м2
                                1/9
                                Универсальное помещение
                                Песочный 6-й тупик, 1
                                 Показать на карте
                                Кировский район
                                Саратов
                                Помещение в нежилом здании на основной магистрали между Солнечным районом и центром. С парковкой для автомобилей. Индивидуальная входная группа сзади здания и общая входная группа с фасада. Есть все коммуникации, 15 кВт электрической мощности. Хорошо подойдёт под офис, магазин, склад, производство тп.
                                139 м2
                                • Показать контакты
                                • Добавить в избранное
                                139 м2
                                69 500 /мес.
                                500 /м2
                                  1/14
                                  Универсальное помещение
                                  Имени А.П. Чехова, 12а
                                   Показать на карте
                                  Ленинский район
                                  Саратов
                                  Центральный перекресток микрорайона угол Тархова и Чехова! Помещение расположено на 2-м этаже отдельно стоящего здания. Свой вход с улицы. Запасной вход для разгрузки. Отлично просматривается с улицы. Помещение свободной планировки. Панорамные окна. Хороший ремонт. Возможность размещения рекламы на фасаде.Все коммуникации, отопление автономное. Мощность электричества 28 кВт. Напротив расположен пешеходный переход и рынок Солнечный. В шаговой доступности остановки общественного транспорта. Удобная транспортная доступность от города. Отлично подойдет под офис компании, кафе, магазин, предприятие сферы услуг, кальянную.Звоните! С удовольствием рассмотрим Ваши предложения по аренде! Без комиссии для арендатора!
                                  200 м2
                                  • Показать контакты
                                  • Добавить в избранное
                                  200 м2
                                  190 000 /мес.
                                  950 /м2
                                    1/30
                                    Универсальное помещение
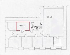
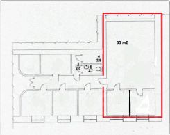
                                    им Кутякова И.С., 9
                                     Показать на карте
                                    Волжский район
                                    Саратов
                                    От собственника! Без комиссии!Характеристики:- 1 линия- Общая входная группа- Общая парковка- Доступ 24/7- ХВС/Бойлер- Общий санузел- Центральное отопление- Хороший ремонт- Кабинетная планировка- Офисный центр- Без лифта- Высота потолков 3 м- Без мебели- С окнами- Инфраструктура: Кафе/столовые, Банки, Магазины- Коммунальные услуги включеныДополнительная информация:Помещение в центре города. Постоянный пешеходный и автомобильный трафик. Светлые , уютные, изолирваные. Подойдёт под:- офис- ателье- салон красоты - медицинский кабинет- стомотологический кабинет- ателье- кабинет психолога и т.д.Запасной выход со двора с М. Горького , где есть место под авто, также парковка вдоль здания.Соседи в здании: ателье, студия кухни, бьюти услуги, министерство экономического развития и т.д. Локация пользуется популярностью, рядом якорные магазины, кафе , ресторан, банк, технопарк, остановки общественного транспорта.По всем вопросам можете обращаться к представителю собственника: Роман Х.
                                    65 м2
                                    • Показать контакты
                                    • Добавить в избранное
                                    65 м2
                                    45 000 /мес.
                                    692 /м2
                                      1/27
                                      Универсальное помещение
                                      Студенческая, 68б
                                       Показать на карте
                                      Энгельс
                                      От собственника! Без комиссии!Торгово-офисное помещение 325 м2, С ремонтом,Электричество 15 кВт,Высота потолков 3.5м,Водоснабжение,Отопление: центральное,Отделка офисная,, Потолки - Армстронг,Пол - плитка, Стены - декоративная штукатурка,Пластиковые окна,Сан. узел,Отдельный вход,Запасной выход,2-я линия от Студенческой улицы.Подойдёт под различные виды деятельности.Возможна сдача части помещения. каждое - со своим входом. Подойдёт под Кондитерскую, студии обучения, массажный кабинет, адвокатский кабинет, бухгалтерские услуги, Склад ''Самоката'' и другие виды деятельности.Екатерина Д.
                                      100 м2
                                      • Показать контакты
                                      • Добавить в избранное
                                      100 м2
                                      40 000 /мес.
                                      398 /м2
                                        1/38
                                        Универсальное помещение
                                        Соколовая, 44/62
                                         Показать на карте
                                        Волжский район
                                        Саратов
                                        От собственника! Без комиссии!Характеристики:- 1 линия- Отдельная входная группа- Общая парковка- Доступ по общему графику- ХВС/ГВС- Общий санузел- Центральное отопление- Есть кондиционер- Хороший ремонт- Кабинетная планировка- Жилой дом- Без лифта- Видеонаблюдение- Без мебели- Без окон- Инфраструктура: Магазины, Банки- Коммунальные услуги оплачиваются отдельно- Предоставление юридического адресаДополнительная информация:Сдаётся помещение 143 м2 свободного назначения в центре Саратова по улице Соколовая (Пентагон-2), граничит с аптекой Апрель, можно использовать под различные виды деятельности (банк, офис, пункт выдачи заказов, складик и другое), все предложения обсуждаются, отдельный вход, без окон, в кабинетах вытяжки и кондиционеры, туалет, душевая кабина, охранная сигнализация, звоните если заинтересовал объект.По всем вопросам можете обращаться к представителю собственника: Роман Х.
                                        143 м2
                                        • Показать контакты
                                        • Добавить в избранное
                                        143 м2
                                        70 000 /мес.
                                        489 /м2
                                          1/18
                                          Универсальное помещение
                                          им Шехурдина А.П., 43б
                                           Показать на карте
                                          Ленинский район
                                          Саратов
                                          Отдельно стоящее здание со стоянкой 100 м2Сдаются отдельно стоящие здания с земельным участком: 23 м2 - 20000 р., 100 м2 — 70000 р.Мощность 15 кВт,Высота потолков 2,8 м,Охрана,Отделка чистовая офисная,Кондиционеры, Свой санузел,Под Магазин, Ресторан, Кафе, Автозапчасти, Фейерверки, Офисы,Своя стоянка автомобилей на участке 5 сот.Транспортная доступность, 1-я линия, высокий автомобильный трафик.Екатерина Д.
                                          90 м2
                                          • Показать контакты
                                          • Добавить в избранное
                                          90 м2
                                          70 000 /мес.
                                          777 /м2
                                            1/8
                                            Универсальное помещение
                                            Марины Расковой, 7б
                                             Показать на карте
                                            Энгельс
                                            От собственника! Без комиссии!Характеристики:- 1 линия- Отдельная входная группа- Высота потолков 3,5 м, - Электрическая мощность 100 кВт, - Отопление центральное,- Своя парковка- Есть возможность разместить вывеску- Погрузка/разгрузка: Главный вход, Запасной вход- Доступ 24/7- Свой санузел- Черновой ремонт- Отдельно стоящее здание- Имеется запасной выход- Без лифта- С окнами- Возможность перепланировки- Коммунальные услуги оплачиваются отдельноДополнительная информация: Якорные арендаторы Магнит и Магнит косметик, Рядом расположены многоэтажные жилые дома, новостройки, Приглашаем к сотрудничеству федеральных арендаторов разного направления (Инструменты, Стройматериалы, Бытовая техника и т.п.). Возможно использовать под офис большой компании.По всем вопросам можете обращаться к представителю собственника: Екатерина Д.Добавьте это объявление в ''избранное'' - чтобы не потерять.
                                            840 м2
                                            • Показать контакты
                                            • Добавить в избранное
                                            840 м2
                                            546 000 /мес.
                                            650 /м2
                                              1/9
                                              Универсальное помещение
                                              им Чернышевского Н.Г., 50а
                                               Показать на карте
                                              Октябрьский район
                                              Саратов
                                              От собственника! Без комиссии!Характеристики:- 2 линия- Общая входная группа- Своя парковка- Доступ по общему графику- Общий санузел- Центральное отопление- Есть кондиционер- Чистовой ремонт- Открытая планировка- Офисный центр- Имеется лифт- Высота потолков 3 м- С окнами- Инфраструктура: Кафе/столовые, Магазины- Коммунальные услуги оплачиваются отдельноДополнительная информация:На 3 этаже имеются в наличии 3 офиса 85,7 м2, 70,6 м2 и 35.9 м2 по 450 р/м2. Отделка офисная: пол- плитка, потолки - Армстронг, стены окрашены. Сан.узел на этаже. Проходная система. Большая охраняемая стоянка около здания. В здании имеется кафе. Возможно использовать как офис, швейное производство.По всем вопросам можете обращаться к представителю собственника: Екатерина Д.
                                              85 м2
                                              • Показать контакты
                                              • Добавить в избранное
                                              85 м2
                                              39 000 /мес.
                                              458 /м2
                                                1/15
                                                Универсальное помещение
                                                Ново-Астраханское шоссе, 64а
                                                 Показать на карте
                                                Заводской район
                                                Саратов
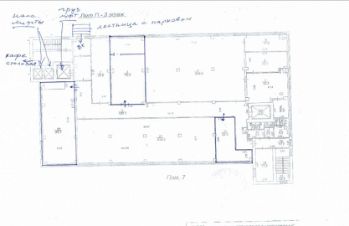
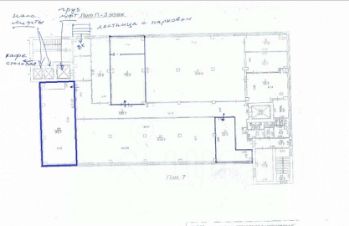
                                                От Собственника. Без комиссии!3-х этажное отдельно стоящее здание общей площадью 1330 м²''Каждый этаж по 445 м² и соединяются лестницей. Планировка этажей добавлена к объявлению.Располагается в близи центральной магистрали в Заводском районе г. Саратова, на Ново-Астраханском шоссе.Территория огорожена и рядом находиться охрана соседней организации, все эти условия залог вашего спокойного пребывания и сохранности вашего личного имущества.Соответствует требованию пожарной безопасности имея запасной эвакуационный выход.На всех этажах сделан черновой ремонт:- залита стяжка, - стены отштукатурены - установлены пластиковые окна- коммуникации подведеныВсё это даёт вам возможность сделать ремонт, подходящий для вашего бизнеса.Отлично подойдет под медицинский центр, колл-центр, банк, офисный центр и многое другое.Документы в порядке.Просмотр доступен по звонку в любой день недели.Екатерина Д.
                                                1330 м2
                                                • Показать контакты
                                                • Добавить в избранное
                                                1330 м2
                                                798 000 /мес.
                                                600 /м2
                                                  1/6
                                                  Универсальное помещение
                                                  Астраханская, 102
                                                   Показать на карте
                                                  Фрунзенский район
                                                  Саратов
                                                  От собственника! Без комиссии!Характеристики:- Теплый склад- Доступ 24/7- Автономное отопление- Высота потолков 3 м- Напольное покрытие - Плитка- Максимальная мощность 10 кВт- Подъездные пути под грузовой транспорт, легковой транспорт- Коммунальные услуги оплачиваются отдельноДополнительная информация:Помещение свободного назначения 128 м2. Идеально подходит под швейное производство под офис. Отличная локация для ведения бизнеса в центре города.По всем вопросам можете обращаться к представителю собственника: Дмитрий П.
                                                  128 м2
                                                  • Показать контакты
                                                  • Добавить в избранное
                                                  128 м2
                                                  64 768 /мес.
                                                  506 /м2
                                                    • 1
                                                    • 2
                                                    • 3
                                                    • Следующая
                                                    Распечатать
                                                    Аренда коммерческой недвижимости в Саратове
                                                    • по районам
                                                    • Волжский район
                                                    • Заводской район
                                                    • Кировский район
                                                    • Ленинский район
                                                    • Октябрьский район
                                                    • Фрунзенский район

                                                    Вместе с этим также ищут:

                                                    Аренда комнат без посредников в Саратове Аренда комнат в Саратове на длительный срок Аренда квартир без посредников в Саратове Аренда квартир в Саратове на длительный срок Снять квартиру посуточно в Саратове Снять комнату посуточно в Саратове Снять гараж в Саратове

                                                    🏠 Как снять коммерческую недвижимость в Саратове на N1?

                                                    • ✔ В поисках объявления об аренде или сдаче коммерческой недвижимости в Саратове?
                                                    • ✔ На N1 размещены 70 коммерческой недвижимости
                                                    • ✔ Чтобы снять или сдать недвижимость, воспользуйтесь формой поиска, фильтрами или быстрыми ссылками.

                                                    💸 Сколько стоит коммерческая недвижимость в Саратове?

                                                    • 🟢 Средняя цена аренды коммерческой недвижимости - 1,05 млн ₽
                                                    • 🟢 Минимальная стоимость за 1 м2: 5,58 тыс ₽

                                                    📚 Какая площадь коммерческой недвижимости?

                                                    • Наибольшая площадь: 1,75 тыс м²
                                                    • Минимальная площадь: 10 м²