Торговые площади
Техническая, 7а Показать на карте
Техническая, 7а Показать на карте
Кировский район
Саратов
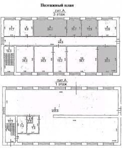
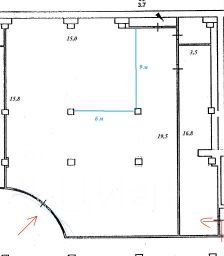
Универсальное помещение расположено на первом этаже 14-тиэтажного кирпичного жилого дома. В новом жилом массиве ''Звезда'' более 3 000 молодых и активных жителей. Фасадная группа выполнена по современным стандартам. Отличный ремонт: пол плитка 6001200, потолок армстронг, межкомнатные двери высокого класса. Проведен интернет, помещение находится под охраной (ОПС), имеется система видеонаблюдения. Все коммуникации в наличии. Отдельный вход. Центральное отопление. Развитая инфраструктура микрорайона. Рядом расположены сетевые магазины, аптеки, салон красоты, фитнес центр. Лицей ''Звезда'' на 1000 мест, детский сад, строится больница. По градостроительному плану города планируется строительство нового района и будет проложена новая автодорога как раз вдоль этого помещения. Привлекательность объекта возрастет в разы!
74 м2
- Показать контакты
- Добавить в избранное
74 м2
39 000 /мес.
522 /м2
