Универсальное помещение
Черниговская, 31 Показать на карте
Черниговская, 31 Показать на карте
Ленинский район
Саратов
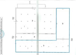
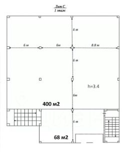
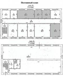
Сдается отдельное помещение свободного назначения, Ленинский р-н, ул. Черниговская. Помещение расположено на 1 линии от улицы, имеет собственный подъезд для разгрузки или парковки автомобилей. Отлично подойдет под аптеку, пункт выдачи, магазин или под малый бизнес!Помещение на стадии ремонта, на фото представлен проект будущей отделки. Есть возможность по договоренности согласовать цветовую гамму в процессе внутренней отделки по договоренности! Объект удачно расположен, вблизи сетевых магазинов и плотной застройки, трафик плотный, что обеспечит внимание и комфорт для будущих клиентов! Код пользователя: 59188Номер в базе: 10335972
31 м2
- Показать контакты
- Добавить в избранное
31 м2
35 000 /мес.
1 129 /м2
