Торговые площади
Астраханская, 103 Показать на карте
Астраханская, 103 Показать на карте
Кировский район
Саратов
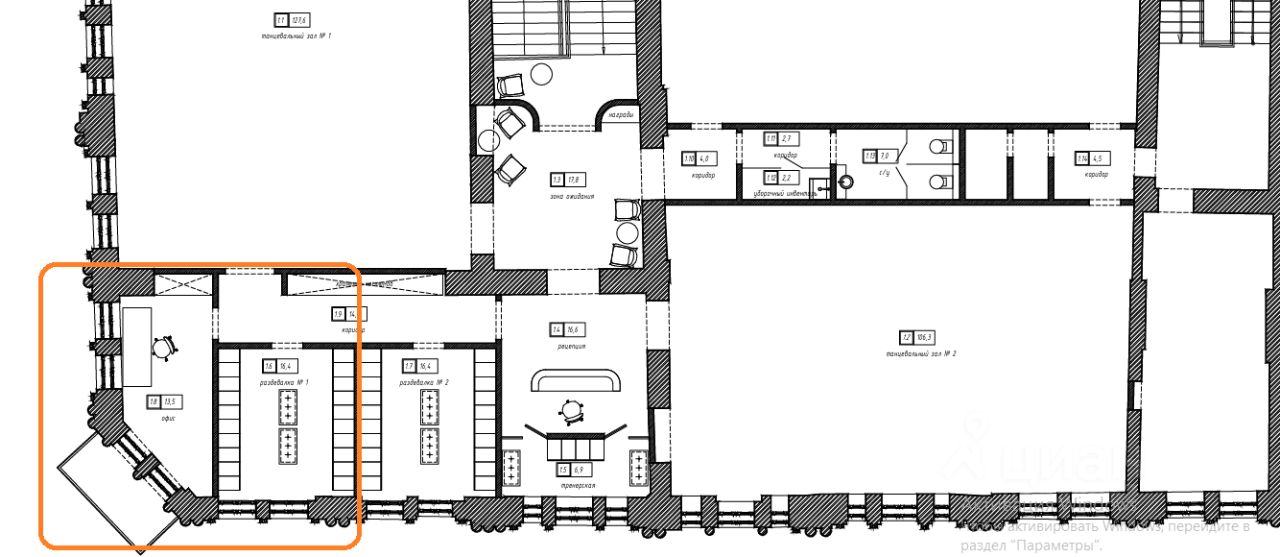
От собственника! Без комиссии!Характеристики:- 2 линия- Отдельная входная группа- Общая парковка- Есть возможность разместить вывеску- Погрузка/разгрузка: Главный вход- Доступ по общему графику- Общий санузел- Автономное отопление- Приточно-вытяжная вентиляция- Чистовой ремонт- Торговый/офисный центр- Высота потолков 3,5 м- С окнами- Коммунальные услуги оплачиваются отдельноДополнительная информация:Отделка помещения: пол- плитка, потолки - Армстронг, стены - гипсокартон, окрашены. Стоянка для работников и посетителей ТК во дворе комплекса. Два въезда и выезда. Ворота на ночь закрываются. Высокий автомобильный и пешеходный трафик.По всем вопросам можете обращаться к представителю собственника: Екатерина Д.
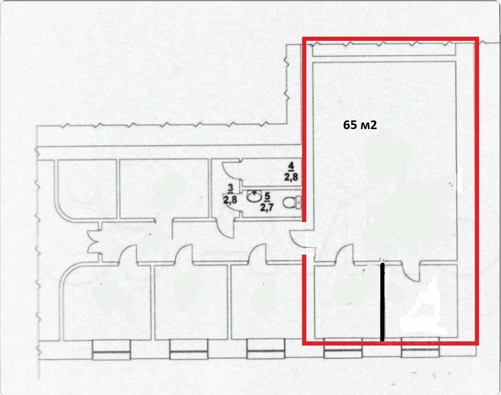
55 м2
- Показать контакты
- Добавить в избранное
55 м2
38 500 /мес.
700 /м2
