Универсальное помещение
Степная, 124 Показать на карте
Степная, 124 Показать на карте
Энгельс
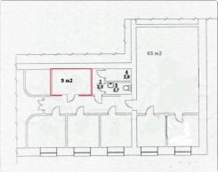
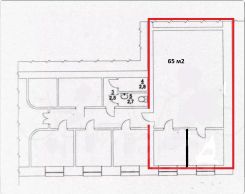
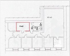
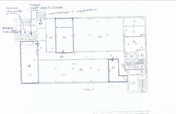
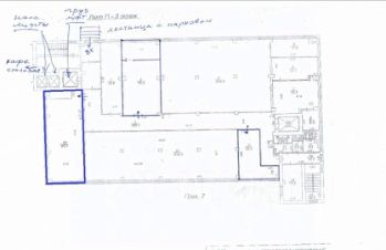
Предлагаем в аренду нежилое пристроенное помещение к жилому дому свободного назначения в центре Энгельса на улице Степная, рядом с Торговым Домом ''Хёндай'' площадью 519,7 кв.м., из них торговый зал составляет 151 и 156 кв.м. Наличие всех центральных коммуникаций, разрешённая электрическая мощность 60 кВт, высота потолков 3,2 м.Состояние: помещение требует ремонта. Два входа. Хороший подъезд, видимость с дороги, парковка перед домом.Возможное использование под магазин, фитнесс-клуб, ресторан.Цена : 450 руб/кв.м. плюс НДС, коммунальные услуги оплачиваются отдельно.Риэлторские услуги оплачиваются отдельно на основании договора.
519 м2
- Показать контакты
- Добавить в избранное
519 м2
233 550 /мес.
450 /м2
