Если цена в объявлении изменится, мы сразу сообщим вам об этом на электронную почту.
Нажимая «Подписаться», вы соглашаетесь с правилами.
продам отдельностоящее здание, проспект Имени Петра Столыпина, 35174 000 000 ₽
2 авг
Дата публикации объявления
Обн. 11 мар
Дата обновления объявления
7
Количество просмотров (+ просмотры за сегодня)
27 402 ₽/м²
Параметры
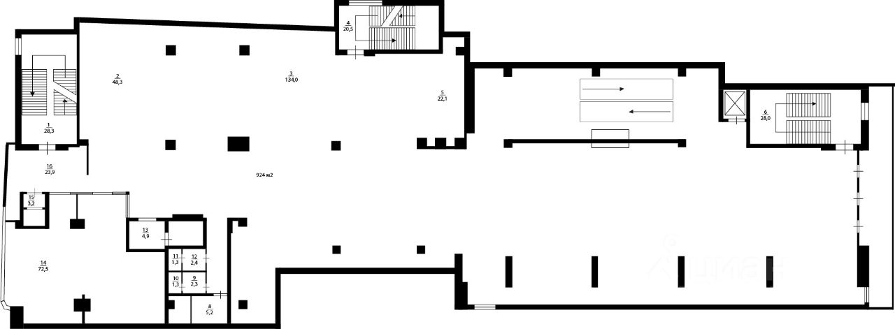
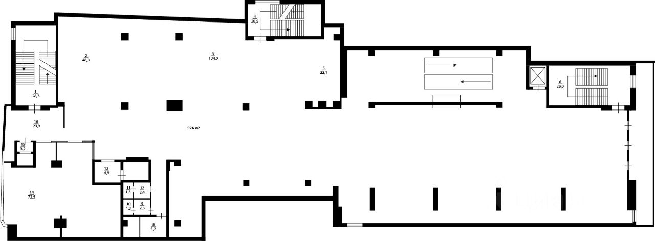
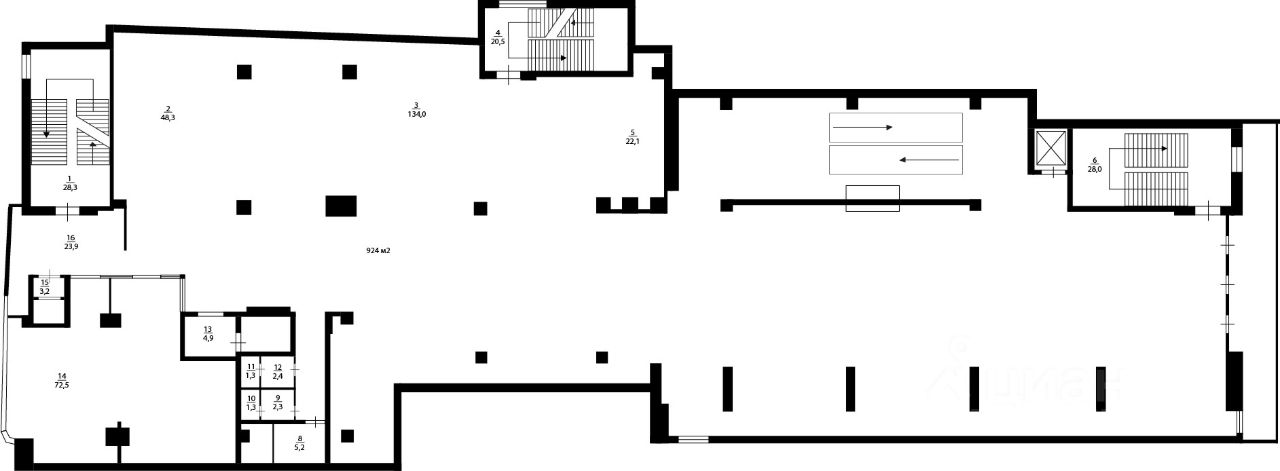
Общая площадь6350 м2
Этаж1
Продается здание в центре г. Саратова ''Торговая галерея Ирис''. Расположено на первой линии одной из самых популярных улиц города . Здание имеет два входа: с пр. Петра Столыпина и с ул. Дзержинского.
Преимущества объекта: — первая линия - максимальная видимость и постоянный поток посетителей, — популярная локация в центре города, — наибольший в городе пешеходный трафик, — удобная транспортная развязка, — наличие двух входов с разных улиц увеличивает удобство и приток клиентов, расширяют возможности для арендаторов.
Техническое описание объекта: — отдельно стоящее шестиэтажное здание, — высота потолков от 3,2м до 3,8 м. — площадь этажа 1000 кв.м. — эскалаторы, лифты пассажирские/грузовые — эл.
Продается здание в центре г. Саратова ''Торговая галерея Ирис''. Расположено на первой линии одной из самых популярных улиц города . Здание имеет два входа: с пр. Петра Столыпина и с ул. Дзержинского.
Преимущества объекта: — первая линия - максимальная видимость и постоянный поток посетителей, — популярная локация в центре города, — наибольший в городе пешеходный трафик, — удобная транспортная развязка, — наличие двух входов с разных улиц увеличивает удобство и приток клиентов, расширяют возможности для арендаторов.
Техническое описание объекта: — отдельно стоящее шестиэтажное здание, — высота потолков от 3,2м до 3,8 м. — площадь этажа 1000 кв.м. — эскалаторы, лифты пассажирские/грузовые — эл. мощность на здание: 600 кВт — автономная отопительная система, — приточно-вытяжная вентиляция , — пожарные коммуникации в строгом соответствии с законодательством РФ, Здание полностью готово к эксплуатации. Для уточнения подробностей и показа свяжитесь с нами по телефону.