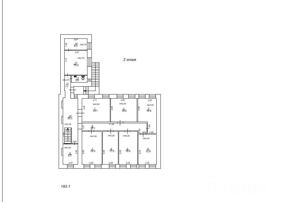
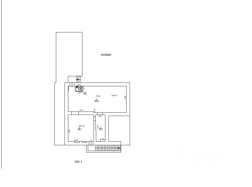
Офисное здание с новым ремонтом, расположено в историческом центре Саратова на улице Вольская между улицами Кутякова и Челюскинцев.
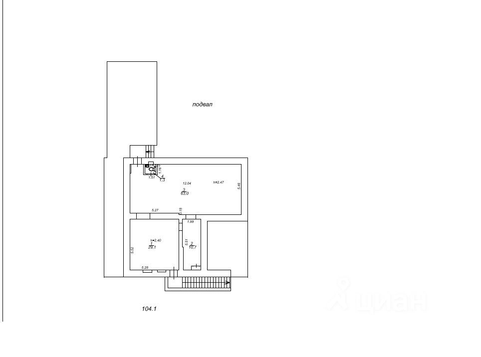
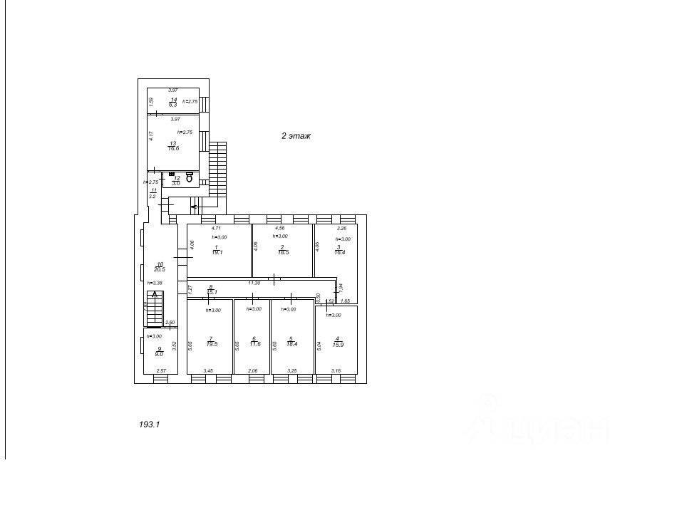
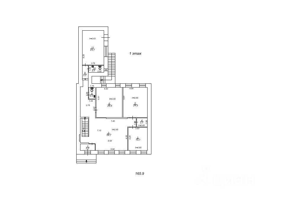
Здание состоит 2 этажей и цоколя и имеет:
- кабинетную планировку,
- свою котельную,
- все коммуникации,
- выделенную электрическую мощность 25 кВт
Здание полностью оборудовано под ключ: сплит системы, мебель. Ремонт дизайнерский выполнен из качественных строительных материалов.
Свой двор (въезд через ворота).
Перед зданием так же расположены парковочные места. В окружении объекта торговые предприятия, жилые дома. Фасад здания отделан мрамором.
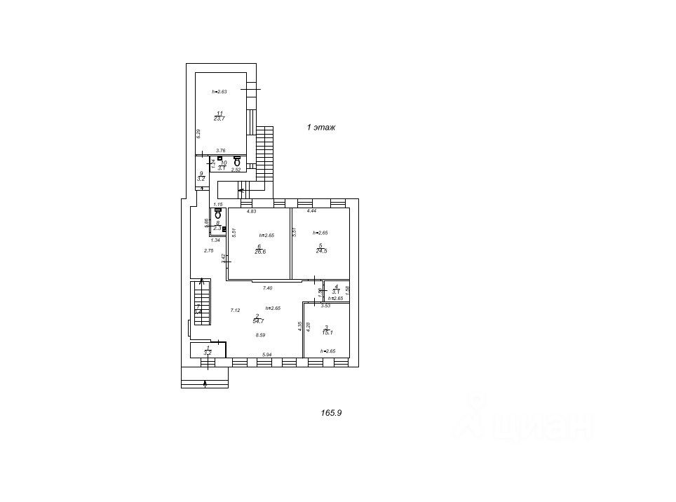
Офисное здание с новым ремонтом, расположено в историческом центре Саратова на улице Вольская между улицами Кутякова и Челюскинцев.
Здание состоит 2 этажей и цоколя и имеет:
- кабинетную планировку,
- свою котельную,
- все коммуникации,
- выделенную электрическую мощность 25 кВт
Здание полностью оборудовано под ключ: сплит системы, мебель. Ремонт дизайнерский выполнен из качественных строительных материалов.
Свой двор (въезд через ворота).
Перед зданием так же расположены парковочные места. В окружении объекта торговые предприятия, жилые дома. Фасад здания отделан мрамором.
Отлично подойдет под: представительский офис компании, школу, клинику, предприятие сферы услуг.