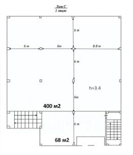
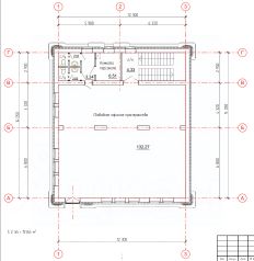
Универсальное помещение
Имени Михаила Галкина-Враского, 1 Показать на карте
Имени Михаила Галкина-Враского, 1 Показать на карте
Ленинский район
Саратов
Помещение расположено на первом этаже десятиэтажного жилого дома. На первой линии. На въезде в новый жилой микрорайон ''Городские просторы''. Отлично просматривается с улицы. Помещение свободной планировки. Панорамные окна. Все коммуникации, отопление центральное. Имеются входные группы как с фасада, Возможность размещения рекламы на фасаде. В шаговой доступности остановка общественного транспорта. Удобная транспортная доступность от города. Соседние помещения занимают: продуктовый магазин ''Чижик'', рыбный магазин, салон цветов, ''Пивной стандарт'', аптека ''Вита'', а в соседнем здании расположена взрослая поликлиника. Отлично подойдет под пекарню, кафе, магазин, предприятие сферы услуг.
140 м2
- Показать контакты
- Добавить в избранное
140 м2
140 000 /мес.
1 000 /м2
