Универсальное помещение
Гусельский проезд, 43а Показать на карте
Гусельский проезд, 43а Показать на карте
Ленинский район
Саратов
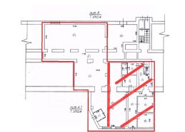
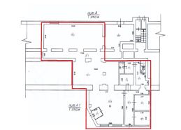
Продажа от собственника! Без комиссии для Покупателя!Продаётся просторное, светлое помещениесвободного назначения, общей площадью 175 м², + земельный участок 245 м.по адресу: г. Саратов Гусельский проезд 43 А.Расположено в непосредственной близости с промышленными организациями и деловым центром.В густонаселённом районе, с активным автомобильным трафиком.Помещение состоит из двух частей: Кафе и работающий на данный момент продуктовый магазин. - Первая линия.- Автомобильный трафик.- Отдельно стоящее здание.- Пол- плитка, потолок- армстронг,- Возможность перепланировки.- Два главных входа.- Запасной выход.- Общая парковка, где всегда есть места, для вас и ваших посетителей.- Возможно разместить вывеску или рекламу на фасаде для привлечения максимального количества клиентов и узнаваемости бренда.- Вблизи находятся остановки общественного транспорта, что позволит легко передвигаться.- Доступ в помещение 24/7 - позволяет не ограничивать себя временными рамками при ведении своего бизнеса.- Помещение на данный момент без арендаторов.Из коммуникаций имеется:- Вода, канализация, то есть имеются все условия для благотворной работы.- Электричество мощностью 10 кВт, возможно увеличение.- Отопление помещения, центральное, позволяет поддерживать комфортную температуру в зимний период времени.Документы в порядке, обременений нет.Возможен быстрый выход на сделку. Остановившись на этом предложении, вы сделаете правильный выбор и приобретете отличное, комфортное помещение в оживленном, развивающемся районе.Приглашаем посмотреть этот престижный объект !Консультанты нашего федерального агентства всегда рады предоставить Вам следующие услуги: - бесплатный подбор лучшего объекта коммерческой недвижимости, который будет соответствовать заданным Вами параметрам и роду Вашей деятельности! - бесплатная консультация по оценке ликвидности объекта, интересующей Вас коммерческой недвижимости! - бесплатная помощь при оформлении ипотеки, на покупку коммерческой недвижимости, в наших банках партнерах! - мы работаем, а Вы отдыхаете и при этом экономите свое время, а взамен получаете деньги и хорошее настроение
175 м2
- Показать контакты
- Добавить в избранное
175 м2
8 000 000
45 714 /м2
