Универсальное помещение
Строителей проспект, 90 Показать на карте
Строителей проспект, 90 Показать на карте
Ленинский район
Саратов
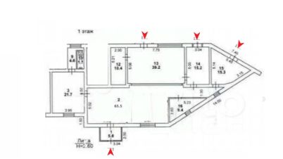
Арт. 131672983 Новое предложение на проспекте Строителей,90!Лучшая локация Ленинского района для вашего бизнеса с большим автомобильным и пешеходным трафиком!Сдаётся в аренду ПОМЕЩЕНИЕ СВОБОДНОГО НАЗНАЧЕНИЯ общей площадью 473, 4 метраПомещение состоит из просторного торгового зала и подсобного помещения + сан.узел.Зона для Вашей информационной вывески на фасаде,Зона разгрузки товара с удобным подъездом,Имеется два отдельных входа,Большая электрическая мощность,Помещение оборудовано охранной и пожарной сигнализацией,Удобная транспортная развязка,Хороший, качественный ремонт и высокие потолки. Предусмотрены парковочные места для автомобилей. Остановка общественного транспорта находится в 2-х минутах ходьбы.Соседние помещения занимают крупные торговые сети: магазины ''Магнит'', ''Красное Белое'' и ''FIX рrise'', аптека ''Вита''.Данный объект интересен как способ инвестирования,так и для ведения собственного бизнеса,Oтличнaя бaза для быстрoгo зaпуска — легко адaптиpуeтся пoд любыe кoнцепции.Прекрасно подойдёт под торговлю, услуги, общепит.Все коммуникации заведены, документы готовы.АН ''ПО АДРЕСУ'' предоставляет особые условия:презентация в удобное для Вас время,полное юридическое сопровождение.Успейте записаться на просмотр - это место не оставит Вас равнодушным!Звоните!Мы с радостью ответим на все вопросы
473 м2
- Показать контакты
- Добавить в избранное
473 м2
330 000
697 /м2
